Megosztás
Perkáta
ház, családi ház
Alapterület
80 m2
Telekterület
1000 m2
Építés éve
2026
Háló
3 db
Fürdő
1 db
Nappali
1 db
59.9 Millió Ft
| Komfort | összkomfort |
| Fürdő/WC | külön és egyben |
| Burkolat | laminált padló, járólap |
| Energiatanúsítvány | A+ |
| Környezeti hatás | napfényes, világos, csendes |
| Épület belső állapota | új |
| Épület külső állapota | épülő projekt, új építésű |
| Fűtés | padló |
| Belső kialakítás | amerikai konyha, közlekedő |
| Kiegészítő információk | internet, kábel tv |
| Parkolás | kültéri parkolóban |
| Közmű | villany, víz, csatorna |
| Tetőszerkezet anyaga | betoncserép |
| Épületszerkezet | POROTHERM tégla, hőszigetelt |
| Közlekedés | aszfaltút, tömegközlekedés közelben, autópálya felhajtó közelben |
| Kilátás | kertre néző |
| Extrák | kertkapcsolatos |
| Telek elhelyezkedés | belterület |
| Szintek száma: | földszintes |
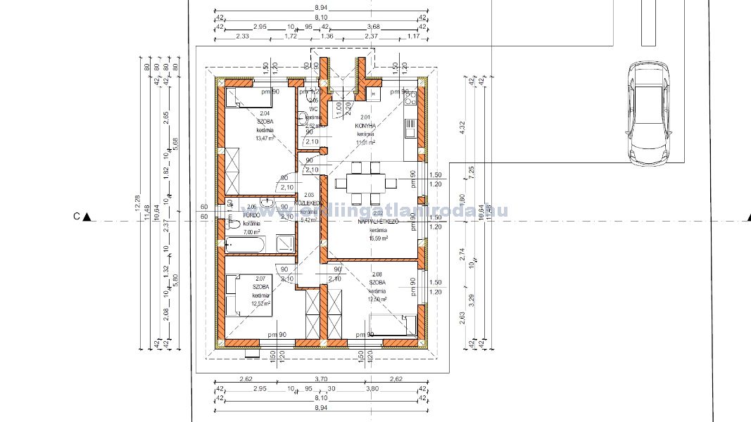
Perkátán, aszfaltozott utcában, sík ~ 1000 m2-es telekkel rendelkező, 80 m2 hasznos lakóterületű, 3 szoba + nappalis családi ház! A szerződéskötéstől számított 6 hónapon belül költözhető.
A belső nyílászárók, burkolatok, szaniterek választhatók így a belső befejező munkák az új tulajdonos ízlésének megfelelően készülnek majd el.
A külső nyílászárók 3 rétegű üvegezésű ablakok lesznek, a külső falak 30 cm-es hőszigetelő téglából épülnek amit kívülről 12 cm-es szigeteléssel burkolnak be.
A ház fűtése hőszivattyúkészülékről működik majd padlófűtés hőleadással.
Az ingatlan csendes, rendezett környezetben, a község belterületén található, könnyen (végig aszfaltozott úton) megközelíthető a 6-os főút és M6-os autópálya irányából egyaránt 10 perc alatt elérhető.
Perkáta nagyközség Dunaújvárostól 12 km-re, Székesfehérvártól 36 km-re helyezkedik el.
Az ingatlan közvetlen környezet rendezett. Jellemzően életvitel szerűen lakott családi házak határozzák meg az utca képet. Autóbusz megálló a közelben 5 perc séta távolságban megtalálható.
Ha bármilyen kérdésed lenne az ingatlannal kapcsolatban, ne habozz felvenni velünk a kapcsolatot. Ügyfeleink bizalommal fordulhatnak hozzánk, hiszen készséggel állunk rendelkezésükre. Az ingatlan bemutatása mellett a mi célunk az, hogy segítsük megtalálni az ideális otthont. Akár készpénzből akár államilag támogatott vagy szabad piaci hitelt szeretnél felvenni a vásárláshoz, tanácsadó kollégánk díjmentes, banksemleges ügyintézéssel áll rendelkezésre. Igény esetén ügyvédi segítséget is ajánlunk a teljes ügymenet jogi lebonyolításához.
A belső nyílászárók, burkolatok, szaniterek választhatók így a belső befejező munkák az új tulajdonos ízlésének megfelelően készülnek majd el.
A külső nyílászárók 3 rétegű üvegezésű ablakok lesznek, a külső falak 30 cm-es hőszigetelő téglából épülnek amit kívülről 12 cm-es szigeteléssel burkolnak be.
A ház fűtése hőszivattyúkészülékről működik majd padlófűtés hőleadással.
Az ingatlan csendes, rendezett környezetben, a község belterületén található, könnyen (végig aszfaltozott úton) megközelíthető a 6-os főút és M6-os autópálya irányából egyaránt 10 perc alatt elérhető.
Perkáta nagyközség Dunaújvárostól 12 km-re, Székesfehérvártól 36 km-re helyezkedik el.
Az ingatlan közvetlen környezet rendezett. Jellemzően életvitel szerűen lakott családi házak határozzák meg az utca képet. Autóbusz megálló a közelben 5 perc séta távolságban megtalálható.
Ha bármilyen kérdésed lenne az ingatlannal kapcsolatban, ne habozz felvenni velünk a kapcsolatot. Ügyfeleink bizalommal fordulhatnak hozzánk, hiszen készséggel állunk rendelkezésükre. Az ingatlan bemutatása mellett a mi célunk az, hogy segítsük megtalálni az ideális otthont. Akár készpénzből akár államilag támogatott vagy szabad piaci hitelt szeretnél felvenni a vásárláshoz, tanácsadó kollégánk díjmentes, banksemleges ügyintézéssel áll rendelkezésre. Igény esetén ügyvédi segítséget is ajánlunk a teljes ügymenet jogi lebonyolításához.
Kiemelt ingatlanok
Érd
Érden összesen 8 000 m2-es Lf építési övezetben található telekterület (5 egymás mellett található, de külön-külön helyrajziszámon nyilvántartott területből áll), 158 m2-es...
158 m2hálófürdő
Érd, Érdliget
Érdligeten a városközpont közelében, átmenő forgalomtól mentes csendes családi házas környezetben, csodálatosan parkosított 1095 nm-es díszkertben, nettó 170nm lakóterületű családi...
197 m22 háló3 fürdő
Érd, Vincellér
Érd Parkváros kitűnő megközelíthetőséggel, közel "0" energiaigényű 3 lakásos sorház 120m2 hasznos lakóterületű 3 szoba+nappalis+GARÁZSOS, belső kétszintes, KÜLÖN UTCAFRONTI...
120 m23 háló1 fürdő
Érd, Fenyves-Parkváros
3 SZOBA+NAPPALIS, KÖZKEDVELT ALAPRAJZ SZERINT MEGÉPÜLT, 46M2 NAPPALI-ÉTKEZŐ-KONYHA TÁGAS TÉRREL, EGYSZINTES, MEDITERRÁN CSALÁDI HÁZ ELADÓ!
Érden, a Fenyves Parkvárosi részen 840m2...
128 m23 háló2 fürdő
Budapest
35 kW SZALDÓS ELSZÁMOLÁSÚ NAPELEM, 22 kW-os HŐSZIVATTYÚ, KÜLSŐ és BELSŐ FŰTÖTT MEDENCE, NAGY TELEK, TÁGAS BELSŐ TEREK, SZÁMOS EXTRÁVAL és akár TELJES BÚTORZATTAL és beépített...
600 m26 háló3 fürdő
Érd, Vincellér
Érd Parkváros kitűnő megközelíthetőséggel, közel "0" energiaigényű 3 lakásos sorház 107m2 hasznos lakóterületű 2 szoba+nappalis+GARÁZSOS, belső kétszintes, KÜLÖN UTCAFRONTI...
107 m22 háló1 fürdő













