Megosztás
Érd, Tisztviselőtelep
lakás, társasházi új építésű
Alapterület
101 m2
Telekterület
m2
Építés éve
2026
Háló
4 db
Fürdő
2 db
Nappali
1 db
123.844 Millió Ft
| Komfort | duplakomfort |
| Fürdő/WC | külön és egyben |
| Burkolat | laminált padló, járólap |
| Energiatanúsítvány | A+ |
| Környezeti hatás | világos, csendes |
| Épület belső állapota | új |
| Épület külső állapota | új építésű |
| Fűtés | fan-coil, padló |
| Belső kialakítás | erkély, amerikai konyha, előszoba, közlekedő, légkondicionálás |
| Kiegészítő információk | alacsony költség, internet, kábel tv |
| Parkolás | teremgarázsban - külön megvásárolható, kültéri parkolóban – külön megvásárolható, Közterületen - ingyenes |
| Telek kialakítás | elektromos kapu |
| Közmű | villany, víz, csatorna, vízórás |
| Tetőszerkezet anyaga | betoncserép |
| Épületszerkezet | POROTHERM tégla, hőszigetelt |
| Közlekedés | aszfaltút, tömegközlekedés közelben, vonat közelben, autópálya felhajtó közelben |
| Kilátás | kertre néző |
| Tetőtér | tetőtéri lakás |
| Épületen belüli elhelyezkedés | tetőtérben |
| Szintek száma: | 3 |
ELŐÉRTÉKESÍTÉSI AKCIÓBAN 2 MILLIÓ Ft-al LEKÖTHETŐ ÚJ ÉPÍTÉSŰ LAKÁS! ÉRD-TISZTVISELŐTELEP kerületben!
MINDEGYIK LAKÁS SAJÁT FŐVÍZMÉRŐ ÓRÁVAL RENDELKEZIK!
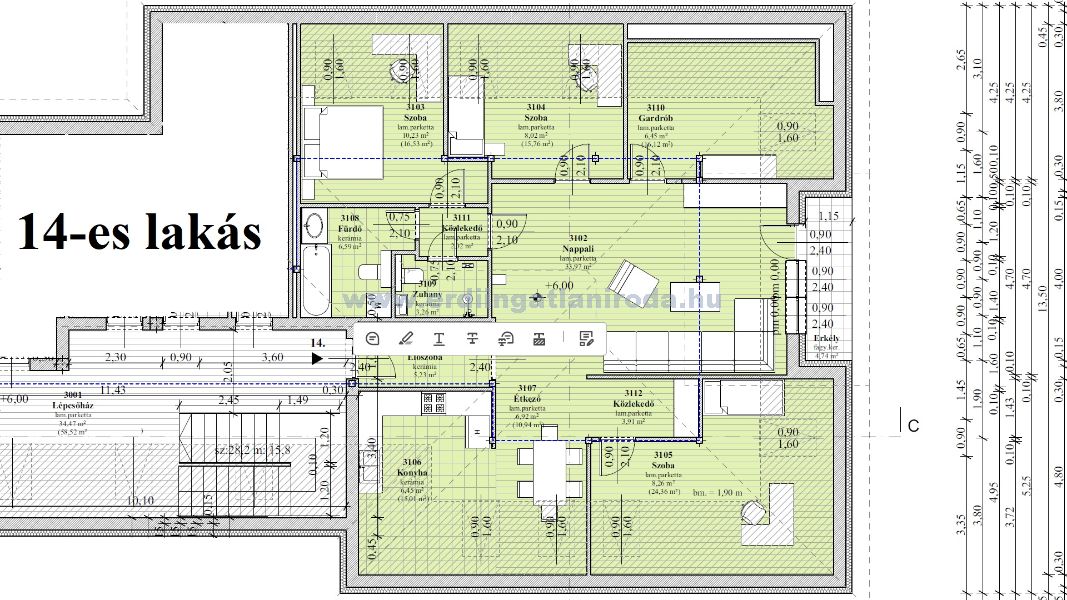
A TÁRSASHÁZI lakás duplakomfortos, nettó 108 m2-es (minimum 1,9 m-es belmagassággal számítva) + 5 m2 erkély, (bruttó 158 m2 (1,9 m-es belmagasság alatti területet is beszámítva)), 3 + fél szoba (10,2 (16,5); 8,3 (24,4); 8 (15,8); 6,4 (16,1) m2) + nappali-étkező (41 (45) m2), konyha (6,5 (15 m2), fürdőszoba -WC, zuhanyzó-WC, előszoba, helyiségekből álló második emeleti (tetőtéri) lakás.
A hideg és meleg burkolatok (7.500 Ft/m2), belső falak színei, szaniterek, csaptelepek választhatók így a leendő új tulajdonos ízlésének megfelelően történek a befejezési munkák. A ház 30-as hőszigetelő téglából épül, amit 15 cm-es szigeteléssel burkolnak. A külső nyílászárók 6 légkamrás, 3 rétegű üvegezéssel ellátott, bukó-nyíló ajtók és ablakok, rejtett redőnytokokkal felszerelve elektromos mozgatásra is előkészítve (a roló és szúnyogháló nem tartozék).
A lakás fűtés és hűtés rendszerét levegő és víz teres elektromos hőszivattyú működteti majd (lakásonként saját készülék) padlófűtéssel, a nappaliban fan coil (klíma) készülékkel „H tarifa” áram szolgáltatással. A melegvízellátást falra szerelt ARISTON típusú hőtároló készülék biztosítja.
Az ingatlan elhelyezkedésének köszönhetően remek adottságokkal rendelkezik. Iskola, óvoda, autóbusz megálló (amelynek járatai Bp. Etele térig közlekedik), Érd- Nagyállomás vasúti megálló (végállomás Kelenföld és Déli p.u.), a mindennapi bevásárláshoz szükséges boltok, háziorvosi rendelő és gyógyszertár 5-10 perces könnyű sétával, az M6-os autópálya 6-os és 7-es főutakkal találkozó csomópontja 5 perc autózással elérhető.
A lakáshoz tartozó saját, teremgarázs parkoló vételára + 3 000 000 Ft, vagy felszíni parkoló 1 500 000 Ft, tároló + 2 000 0000 Ft a lakás vételárán felül vásárolható.
Ezen a linken megnézheti a beruházó egyik már átadott társasházáról és annak lakásairól készült videót:
https://www.youtube.com/watch?v=IJpMbm6kAuY
Ha bármilyen kérdésed lenne az ingatlannal kapcsolatban, ne habozz felvenni velünk a kapcsolatot. Ügyfeleink bizalommal fordulhatnak hozzánk, hiszen készséggel állunk rendelkezésükre. Az ingatlan bemutatása mellett a mi célunk az, hogy segítsük megtalálni az ideális otthont. Akár készpénzből akár államilag támogatott vagy szabad piaci hitelt szeretnél felvenni a vásárláshoz, tanácsadó kollégánk díjmentes, banksemleges ügyintézéssel áll rendelkezésre. Igény esetén ügyvédi segítséget is ajánlunk a teljes ügymenet jogi lebonyolításához.
Jelenleg elérhető lakáskínálat:
Földszint:
1-es lakás. ELADVA
2-es lakás. 2 szoba + nappali, 60 m2 (+ 4,6 m2 terasz + 5 m2 tároló), kertkapcsolat. 78 Millió Ft (+ garázs 3 Millió + Tároló 2 Millió össz.: 83 Millió Ft)
3-as lakás. 2 szoba + nappali, 52,66 m2 (+ 5 m2 tároló). 68,5 Millió Ft (+ garázs 3 Millió + Tároló 2 Millió össz.: 73,5 Millió Ft)
4-es lakás. 2 szoba + nappali, 60,32 m2 (+ 4 m2 terasz + 5 m2 tároló), kertkapcsolat. 77,4 Millió Ft (+ garázs 3 Millió + Tároló 2 Millió össz.: 82,4 Millió Ft)
5-ös lakás. ELADVA
6-os lakás.ELADVA
Emelet:
7-es lakás. ELADVA
8-as lakás. 2 szoba + nappali, 60,19 m2 (+ 4,74 m2 erkély + 5 m2 tároló). 80,744 Millió Ft (+ garázs 3 Millió + Tároló 2 Millió össz.: 85,774 Millió Ft)
9-es lakás. 2 szoba + nappali, 61,47 m2 (+ 4,09 m2 erkély + 5 m2 tároló). 82,354 Millió Ft (+ felszíni parkoló 1,5 Millió + Tároló 2 Millió össz.: 85,854 Millió Ft)
10-es lakás. 2 szoba + nappali, 67,52 m2 (+ 5,03 m2 erkély + 5 m2 tároló). 90,518 Millió Ft (+ felszíni parkoló 1,5 Millió + Tároló 2 Millió össz.: 94,018 Millió Ft)
11-es lakás. 3 szoba + nappali, 107,65 m2 (+ 9,83 m2 erkély + 5 m2 tároló). 140,398 Millió Ft (+ felszíni parkoló 1,5 Millió + Tároló 2 Millió össz.: 143,898 Millió Ft)
12-es lakás. 2 szoba + nappali, 63,07 m2 (+ 7,7 m2 erkély + 5 m2 tároló). 86,520 Millió Ft (+ felszíni parkoló 1,5 Millió + Tároló 2 Millió össz.: 90,02 Millió Ft)
13-as lakás. 2 szoba + nappali, 63,98 m2 (+ 7,7 m2 erkély + 5 m2 tároló). 87,62 Millió Ft (+ felszíni parkoló 1,5 Millió + Tároló 2 Millió össz.: 91,12 Millió Ft)
Tetőtér:
14-es lakás. 4 szoba + nappali, dupla fürdőszobás, nettó: 101,31 m2 bruttó: 153,7 m2 (+ 4,74 m2 erkély + 5 m2 tároló). 123,844 Millió Ft (+ felszíni parkoló 1,5 Millió + Tároló 2 Millió össz.: 127,344 Millió Ft)
15-ös lakás. ELADVA
16-os lakás. 3 szoba + nappali, nettó: 68,87 m2 bruttó: 82,95 m2 (+ 7,28 m2 erkély + 5 m2 tároló). 73,238 Millió Ft (+ felszíni parkoló 1,5 Millió + Tároló 2 Millió össz.: 76,738 Millió Ft)
MINDEGYIK LAKÁS SAJÁT FŐVÍZMÉRŐ ÓRÁVAL RENDELKEZIK!
A TÁRSASHÁZI lakás duplakomfortos, nettó 108 m2-es (minimum 1,9 m-es belmagassággal számítva) + 5 m2 erkély, (bruttó 158 m2 (1,9 m-es belmagasság alatti területet is beszámítva)), 3 + fél szoba (10,2 (16,5); 8,3 (24,4); 8 (15,8); 6,4 (16,1) m2) + nappali-étkező (41 (45) m2), konyha (6,5 (15 m2), fürdőszoba -WC, zuhanyzó-WC, előszoba, helyiségekből álló második emeleti (tetőtéri) lakás.
A hideg és meleg burkolatok (7.500 Ft/m2), belső falak színei, szaniterek, csaptelepek választhatók így a leendő új tulajdonos ízlésének megfelelően történek a befejezési munkák. A ház 30-as hőszigetelő téglából épül, amit 15 cm-es szigeteléssel burkolnak. A külső nyílászárók 6 légkamrás, 3 rétegű üvegezéssel ellátott, bukó-nyíló ajtók és ablakok, rejtett redőnytokokkal felszerelve elektromos mozgatásra is előkészítve (a roló és szúnyogháló nem tartozék).
A lakás fűtés és hűtés rendszerét levegő és víz teres elektromos hőszivattyú működteti majd (lakásonként saját készülék) padlófűtéssel, a nappaliban fan coil (klíma) készülékkel „H tarifa” áram szolgáltatással. A melegvízellátást falra szerelt ARISTON típusú hőtároló készülék biztosítja.
Az ingatlan elhelyezkedésének köszönhetően remek adottságokkal rendelkezik. Iskola, óvoda, autóbusz megálló (amelynek járatai Bp. Etele térig közlekedik), Érd- Nagyállomás vasúti megálló (végállomás Kelenföld és Déli p.u.), a mindennapi bevásárláshoz szükséges boltok, háziorvosi rendelő és gyógyszertár 5-10 perces könnyű sétával, az M6-os autópálya 6-os és 7-es főutakkal találkozó csomópontja 5 perc autózással elérhető.
A lakáshoz tartozó saját, teremgarázs parkoló vételára + 3 000 000 Ft, vagy felszíni parkoló 1 500 000 Ft, tároló + 2 000 0000 Ft a lakás vételárán felül vásárolható.
Ezen a linken megnézheti a beruházó egyik már átadott társasházáról és annak lakásairól készült videót:
https://www.youtube.com/watch?v=IJpMbm6kAuY
Ha bármilyen kérdésed lenne az ingatlannal kapcsolatban, ne habozz felvenni velünk a kapcsolatot. Ügyfeleink bizalommal fordulhatnak hozzánk, hiszen készséggel állunk rendelkezésükre. Az ingatlan bemutatása mellett a mi célunk az, hogy segítsük megtalálni az ideális otthont. Akár készpénzből akár államilag támogatott vagy szabad piaci hitelt szeretnél felvenni a vásárláshoz, tanácsadó kollégánk díjmentes, banksemleges ügyintézéssel áll rendelkezésre. Igény esetén ügyvédi segítséget is ajánlunk a teljes ügymenet jogi lebonyolításához.
Jelenleg elérhető lakáskínálat:
Földszint:
1-es lakás. ELADVA
2-es lakás. 2 szoba + nappali, 60 m2 (+ 4,6 m2 terasz + 5 m2 tároló), kertkapcsolat. 78 Millió Ft (+ garázs 3 Millió + Tároló 2 Millió össz.: 83 Millió Ft)
3-as lakás. 2 szoba + nappali, 52,66 m2 (+ 5 m2 tároló). 68,5 Millió Ft (+ garázs 3 Millió + Tároló 2 Millió össz.: 73,5 Millió Ft)
4-es lakás. 2 szoba + nappali, 60,32 m2 (+ 4 m2 terasz + 5 m2 tároló), kertkapcsolat. 77,4 Millió Ft (+ garázs 3 Millió + Tároló 2 Millió össz.: 82,4 Millió Ft)
5-ös lakás. ELADVA
6-os lakás.ELADVA
Emelet:
7-es lakás. ELADVA
8-as lakás. 2 szoba + nappali, 60,19 m2 (+ 4,74 m2 erkély + 5 m2 tároló). 80,744 Millió Ft (+ garázs 3 Millió + Tároló 2 Millió össz.: 85,774 Millió Ft)
9-es lakás. 2 szoba + nappali, 61,47 m2 (+ 4,09 m2 erkély + 5 m2 tároló). 82,354 Millió Ft (+ felszíni parkoló 1,5 Millió + Tároló 2 Millió össz.: 85,854 Millió Ft)
10-es lakás. 2 szoba + nappali, 67,52 m2 (+ 5,03 m2 erkély + 5 m2 tároló). 90,518 Millió Ft (+ felszíni parkoló 1,5 Millió + Tároló 2 Millió össz.: 94,018 Millió Ft)
11-es lakás. 3 szoba + nappali, 107,65 m2 (+ 9,83 m2 erkély + 5 m2 tároló). 140,398 Millió Ft (+ felszíni parkoló 1,5 Millió + Tároló 2 Millió össz.: 143,898 Millió Ft)
12-es lakás. 2 szoba + nappali, 63,07 m2 (+ 7,7 m2 erkély + 5 m2 tároló). 86,520 Millió Ft (+ felszíni parkoló 1,5 Millió + Tároló 2 Millió össz.: 90,02 Millió Ft)
13-as lakás. 2 szoba + nappali, 63,98 m2 (+ 7,7 m2 erkély + 5 m2 tároló). 87,62 Millió Ft (+ felszíni parkoló 1,5 Millió + Tároló 2 Millió össz.: 91,12 Millió Ft)
Tetőtér:
14-es lakás. 4 szoba + nappali, dupla fürdőszobás, nettó: 101,31 m2 bruttó: 153,7 m2 (+ 4,74 m2 erkély + 5 m2 tároló). 123,844 Millió Ft (+ felszíni parkoló 1,5 Millió + Tároló 2 Millió össz.: 127,344 Millió Ft)
15-ös lakás. ELADVA
16-os lakás. 3 szoba + nappali, nettó: 68,87 m2 bruttó: 82,95 m2 (+ 7,28 m2 erkély + 5 m2 tároló). 73,238 Millió Ft (+ felszíni parkoló 1,5 Millió + Tároló 2 Millió össz.: 76,738 Millió Ft)
Kiemelt ingatlanok
Érd, Dombosváros
Érd dombosvárosi területén , főút közeli csendes , család barát aszfaltozott utcában , 1097 m2-es extra méretű parkosított összközműves telken ,belső kétszintes ,135,6m2-es ,3...
135 m23 háló2 fürdő
Érd, Érdliget
Érdligeten a városközpont közelében, átmenő forgalomtól mentes csendes családi házas környezetben, csodálatosan parkosított 1095 nm-es díszkertben, nettó 170nm lakóterületű családi...
197 m22 háló3 fürdő
Érd, Vincellér
Érd Parkváros kitűnő megközelíthetőséggel, közel "0" energiaigényű 3 lakásos sorház 120m2 hasznos lakóterületű 3 szoba+nappalis+GARÁZSOS, belső kétszintes, KÜLÖN UTCAFRONTI...
120 m23 háló1 fürdő
Budapest
35 kW SZALDÓS ELSZÁMOLÁSÚ NAPELEM, 22 kW-os HŐSZIVATTYÚ, KÜLSŐ és BELSŐ FŰTÖTT MEDENCE, NAGY TELEK, TÁGAS BELSŐ TEREK, SZÁMOS EXTRÁVAL és akár TELJES BÚTORZATTAL és beépített...
600 m26 háló3 fürdő
Érd, Fenyves-Parkváros
3 SZOBA+NAPPALIS, KÖZKEDVELT ALAPRAJZ SZERINT MEGÉPÜLT, 46M2 NAPPALI-ÉTKEZŐ-KONYHA TÁGAS TÉRREL, EGYSZINTES, MEDITERRÁN CSALÁDI HÁZ ELADÓ!
Érden, a Fenyves Parkvárosi részen 840m2...
128 m23 háló2 fürdő
Érd
Érden összesen 8 000 m2-es Lf építési övezetben található telekterület (5 egymás mellett található, de külön-külön helyrajziszámon nyilvántartott területből áll), 158 m2-es...
158 m2hálófürdő













