Megosztás
Balatonszárszó
ház, családi ház, többgenerációs családi ház
Alapterület
152 m2
Telekterület
1357 m2
Építés éve
Háló
3 db
Fürdő
2 db
Nappali
2 db
199 Millió Ft
| Komfort | luxus, duplakomfort |
| Fürdő/WC | külön és egyben |
| Burkolat | laminált padló, járólap |
| Energiatanúsítvány | A+ |
| Környezeti hatás | napfényes, világos, csendes |
| Épület belső állapota | felújított |
| Épület külső állapota | felújított |
| Fűtés | fan-coil, padló |
| Belső kialakítás | amerikai konyha, előszoba, közlekedő, háztartási helyiség, tároló, légkondicionálás, redőny |
| Kiegészítő információk | internet, kábel tv, azonnal költözhető |
| Tájolás | délnyugat |
| Parkolás | garázsban, kültéri parkolóban, Közterületen - ingyenes |
| Telek kialakítás | elektromos kapu |
| Közmű | villany, víz, csatorna, ipari áram |
| Tetőszerkezet anyaga | cserép |
| Épületszerkezet | tégla, YTONG, hőszigetelt |
| Közlekedés | aszfaltút, tömegközlekedés közelben, vonat közelben, autópálya felhajtó közelben |
| Kilátás | kertre néző |
| Extrák | akadálymentesített, kertkapcsolatos |
| Tetőtér | beépíthető |
| Telek elhelyezkedés | belterület |
| Szintek száma: | földszintes |
Balatonszárszón a vasúttól 300 m a strandtól 400 m-re. TELJESEN FELÚJÍTOTT! 2 apartmanból álló családiház, napelemmel (HMKE szaldós elszámolással), hőszivattyús hűtés-fűtés!
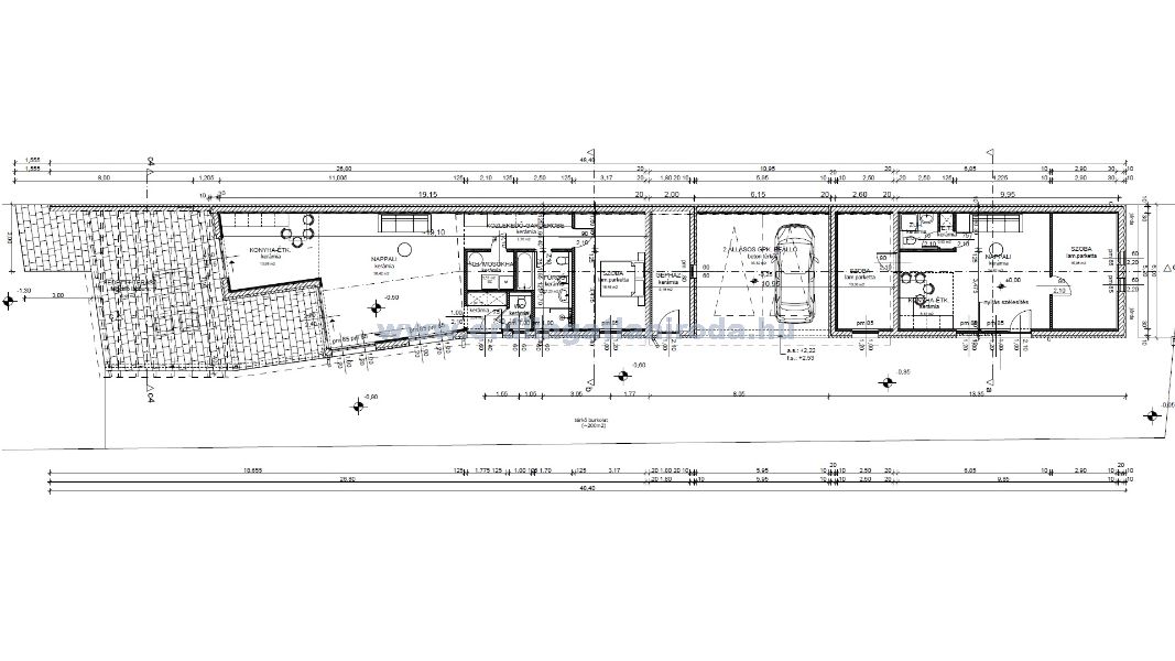
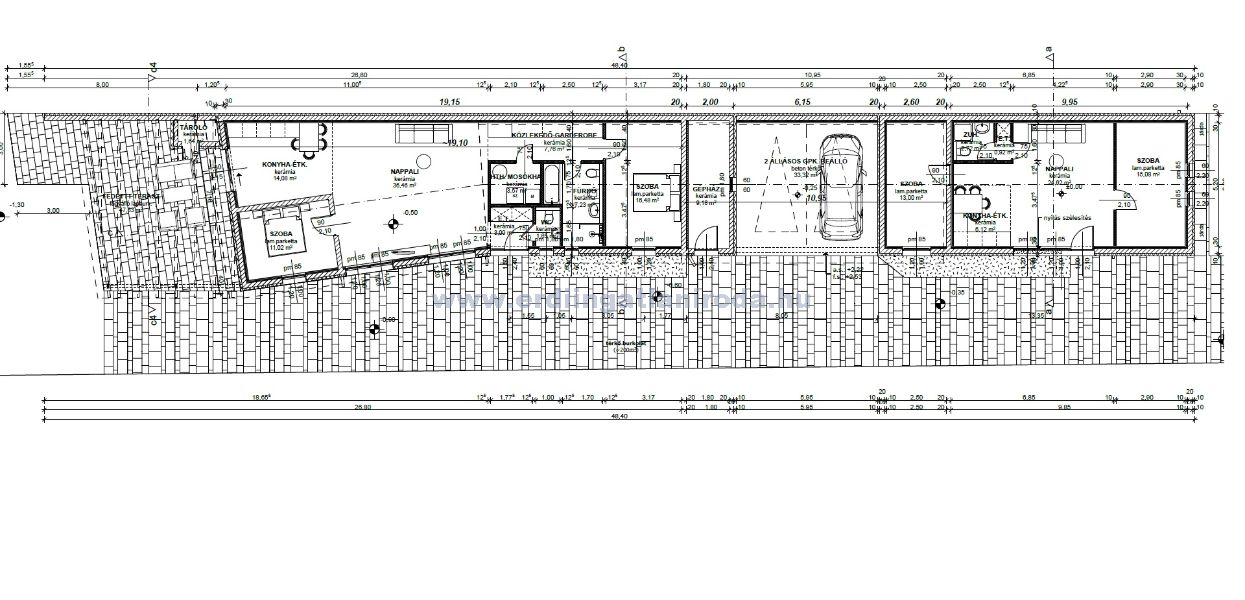
A ház 1357 m2-es telken található. A két apartman rész között 2 férőhelyes fedett autóbeálló és gépészeti helyiség határolja el egymástól a lakrészeket.
Az 1-es utcafronti apartman 62,5 m2. 2 szoba (15; 13 m2), nappali-konyha-étkező (31 m2) és zuhanyzós fürdőszobából áll.
A 2-es hátsó lakrész 90 m2 + 61 m2 terasz. 1 szoba (16,5 m2), nappali-konyha-étkező (50 m2), háztartási helyiség, fürdőszoba (káddal és épített zuhanyzóval), kézmosó-WC helyiségekből áll.
Ez a rész a terasz irányába könnyedén tovább bővíthető egy 11 m2-es szobával. Ennek a változatnak az alaprajza is megtalálható a hirdetésben a képek között. Padlófűtési kör be lett építve, villanyszerelés, csövezés ennek megfelelően elkészült. A területet a ház egységes tetőszerkezete fedi, így igény esetén a főfalak felhúzásával létre jön a plusz szoba.
Az épület teljes felújításon esett át, ennek elkészülte után még nem lakták az ingatlant.
Számos extrával is felszerelték vagy előkészítették azok beszerelését.
Felújítás: Új függesztett álmennyezet készült gipszkartonból. Külső homlokzaton 10 cm vastag hőszigetelés, belül további 5 cm ásványgyapot szigetelés, a szarufaközök/födémek 15 cm szigetelése mellett az álmennyezet fölé 10 cm ásványgyapot szigetelés került, a sátortető ferdesíkja is szigetelve lett, a padlástér pakolható, későbbiekben akár beépíthető.
Teljesen új gépészeti rendszer (víz, szennyvíz, csapadékvíz, fűtés, hűtés).
Hőszivattyú CONCEPT SPLIT levegő-víz hőszivattyús hűtő-, hűtő rendszer, mennyezetbe épített fan coil-okkal, illetve padlófűtéssel egyedi vezérléssel (kis apartman 12kW a nagyobbik pedig 16 kW teljesítménnyel).
Új villamos energia hálózat méretlen EON fővezetékkel együtt, (3x40A lekötött áramerőséggel).
Teljesen új gyengeáramú vezetékezés.
Extrák: Napelem rendszer, Solar Edge 16 kW / 22,96 kWp teljesítménnyel beépített napelemenkénti optimalizálással, HMKE szaldós elszámolással engedélyeztetve.
Redőny vagy zsalugáter az ablakokon szúnyoghálóval.
Extrák vagy fejlesztések későbbi megvalósításának előkészítései:
- terasz beszögellésnél 11 m2 szoba kialakításának lehetősége, (padlófűtési kör be lett építve, villanyszerelés, csövezés ennek megfelelően elkészült, az alaprajz a hirdetés fotói között megtalálható)
- riasztó és kamera rendszer telepítéséhez falon belüli védőcsövezés
- teraszra előkészített kiállások: jakuzzi elhelyezéséhez, szauna elhelyezéséhez, zuhanyzó-WC építéséhez.
- a terasz folytatásaként a kertben medence építéséhez kiállások előkészítve.
Ha bármilyen kérdésed lenne az ingatlannal kapcsolatban, ne habozz felvenni velünk a kapcsolatot. Ügyfeleink bizalommal fordulhatnak hozzánk, hiszen készséggel állunk rendelkezésükre. Az ingatlan bemutatása mellett a mi célunk az, hogy segítsük megtalálni az ideális otthont. Akár készpénzből akár államilag támogatott vagy szabad piaci hitelt szeretnél felvenni a vásárláshoz, tanácsadó kollégánk díjmentes, banksemleges ügyintézéssel áll rendelkezésre. Igény esetén ügyvédi segítséget is ajánlunk a teljes ügymenet jogi lebonyolításához.
A ház 1357 m2-es telken található. A két apartman rész között 2 férőhelyes fedett autóbeálló és gépészeti helyiség határolja el egymástól a lakrészeket.
Az 1-es utcafronti apartman 62,5 m2. 2 szoba (15; 13 m2), nappali-konyha-étkező (31 m2) és zuhanyzós fürdőszobából áll.
A 2-es hátsó lakrész 90 m2 + 61 m2 terasz. 1 szoba (16,5 m2), nappali-konyha-étkező (50 m2), háztartási helyiség, fürdőszoba (káddal és épített zuhanyzóval), kézmosó-WC helyiségekből áll.
Ez a rész a terasz irányába könnyedén tovább bővíthető egy 11 m2-es szobával. Ennek a változatnak az alaprajza is megtalálható a hirdetésben a képek között. Padlófűtési kör be lett építve, villanyszerelés, csövezés ennek megfelelően elkészült. A területet a ház egységes tetőszerkezete fedi, így igény esetén a főfalak felhúzásával létre jön a plusz szoba.
Az épület teljes felújításon esett át, ennek elkészülte után még nem lakták az ingatlant.
Számos extrával is felszerelték vagy előkészítették azok beszerelését.
Felújítás: Új függesztett álmennyezet készült gipszkartonból. Külső homlokzaton 10 cm vastag hőszigetelés, belül további 5 cm ásványgyapot szigetelés, a szarufaközök/födémek 15 cm szigetelése mellett az álmennyezet fölé 10 cm ásványgyapot szigetelés került, a sátortető ferdesíkja is szigetelve lett, a padlástér pakolható, későbbiekben akár beépíthető.
Teljesen új gépészeti rendszer (víz, szennyvíz, csapadékvíz, fűtés, hűtés).
Hőszivattyú CONCEPT SPLIT levegő-víz hőszivattyús hűtő-, hűtő rendszer, mennyezetbe épített fan coil-okkal, illetve padlófűtéssel egyedi vezérléssel (kis apartman 12kW a nagyobbik pedig 16 kW teljesítménnyel).
Új villamos energia hálózat méretlen EON fővezetékkel együtt, (3x40A lekötött áramerőséggel).
Teljesen új gyengeáramú vezetékezés.
Extrák: Napelem rendszer, Solar Edge 16 kW / 22,96 kWp teljesítménnyel beépített napelemenkénti optimalizálással, HMKE szaldós elszámolással engedélyeztetve.
Redőny vagy zsalugáter az ablakokon szúnyoghálóval.
Extrák vagy fejlesztések későbbi megvalósításának előkészítései:
- terasz beszögellésnél 11 m2 szoba kialakításának lehetősége, (padlófűtési kör be lett építve, villanyszerelés, csövezés ennek megfelelően elkészült, az alaprajz a hirdetés fotói között megtalálható)
- riasztó és kamera rendszer telepítéséhez falon belüli védőcsövezés
- teraszra előkészített kiállások: jakuzzi elhelyezéséhez, szauna elhelyezéséhez, zuhanyzó-WC építéséhez.
- a terasz folytatásaként a kertben medence építéséhez kiállások előkészítve.
Ha bármilyen kérdésed lenne az ingatlannal kapcsolatban, ne habozz felvenni velünk a kapcsolatot. Ügyfeleink bizalommal fordulhatnak hozzánk, hiszen készséggel állunk rendelkezésükre. Az ingatlan bemutatása mellett a mi célunk az, hogy segítsük megtalálni az ideális otthont. Akár készpénzből akár államilag támogatott vagy szabad piaci hitelt szeretnél felvenni a vásárláshoz, tanácsadó kollégánk díjmentes, banksemleges ügyintézéssel áll rendelkezésre. Igény esetén ügyvédi segítséget is ajánlunk a teljes ügymenet jogi lebonyolításához.
Kiemelt ingatlanok
Érd, Dombosváros
Érd dombosvárosi területén , főút közeli csendes , család barát aszfaltozott utcában , 1097 m2-es extra méretű parkosított összközműves telken ,belső kétszintes ,135,6m2-es ,3...
135 m23 háló2 fürdő
Érd, Vincellér
Érd Parkváros kitűnő megközelíthetőséggel, közel "0" energiaigényű 3 lakásos sorház 120m2 hasznos lakóterületű 3 szoba+nappalis+GARÁZSOS, belső kétszintes, KÜLÖN UTCAFRONTI...
120 m23 háló1 fürdő
Érd, Érdliget
Érdligeten a városközpont közelében, átmenő forgalomtól mentes csendes családi házas környezetben, csodálatosan parkosított 1095 nm-es díszkertben, nettó 170nm lakóterületű családi...
197 m22 háló3 fürdő
Érd
Érden összesen 8 000 m2-es Lf építési övezetben található telekterület (5 egymás mellett található, de külön-külön helyrajziszámon nyilvántartott területből áll), 158 m2-es...
158 m2hálófürdő
Budapest
35 kW SZALDÓS ELSZÁMOLÁSÚ NAPELEM, 22 kW-os HŐSZIVATTYÚ, KÜLSŐ és BELSŐ FŰTÖTT MEDENCE, NAGY TELEK, TÁGAS BELSŐ TEREK, SZÁMOS EXTRÁVAL és akár TELJES BÚTORZATTAL és beépített...
600 m26 háló3 fürdő
Érd, Vincellér
Érd Parkváros kitűnő megközelíthetőséggel, közel "0" energiaigényű 3 lakásos sorház 107m2 hasznos lakóterületű 2 szoba+nappalis+GARÁZSOS, belső kétszintes, KÜLÖN UTCAFRONTI...
107 m22 háló1 fürdő













