Megosztás
Érd, Tisztviselőtelep
lakás, társasházi új építésű
Alapterület
68 m2
Telekterület
m2
Építés éve
2026
Háló
2 db
Fürdő
1 db
Nappali
1 db
90.518 Millió Ft
| Komfort | összkomfort |
| Fürdő/WC | egyben |
| Burkolat | laminált padló, járólap |
| Energiatanúsítvány | A+ |
| Környezeti hatás | világos, csendes |
| Épület belső állapota | új |
| Épület külső állapota | új építésű |
| Fűtés | fan-coil, padló |
| Belső kialakítás | erkély, amerikai konyha, kamra, előszoba, légkondicionálás |
| Kiegészítő információk | alacsony költség, internet, kábel tv |
| Parkolás | teremgarázsban - külön megvásárolható, kültéri parkolóban – külön megvásárolható, Közterületen - ingyenes |
| Telek kialakítás | elektromos kapu |
| Közmű | villany, víz, csatorna, vízórás |
| Tetőszerkezet anyaga | betoncserép |
| Épületszerkezet | POROTHERM tégla, hőszigetelt |
| Közlekedés | aszfaltút, tömegközlekedés közelben, vonat közelben, autópálya felhajtó közelben |
| Kilátás | kertre néző |
| Szintek száma: | 3 |
ELŐÉRTÉKESÍTÉSI AKCIÓBAN 2 MILLIÓ Ft-al LEKÖTHETŐ ÚJ ÉPÍTÉSŰ LAKÁS! ÉRD-TISZTVISELŐTELEP kerületben!
MINDEGYIK LAKÁS SAJÁT FŐVÍZMÉRŐ ÓRÁVAL RENDELKEZIK!
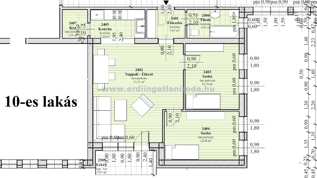
A TÁRSASHÁZI lakás 68 m2-es + 5 m2 erkély, 2 szoba (12; 11,8 m2) + nappali-konyha-étkező (33 m2), fürdőszoba -WC, kamra, előszoba, helyiségekből álló első emeleti lakás.
A hideg és meleg burkolatok (7.500 Ft/m2), belső falak színei, szaniterek, csaptelepek választhatók így a leendő új tulajdonos ízlésének megfelelően történek a befejezési munkák. A ház 30-as hőszigetelő téglából épül, amit 15 cm-es szigeteléssel burkolnak. A külső nyílászárók 6 légkamrás, 3 rétegű üvegezéssel ellátott, bukó-nyíló ajtók és ablakok, rejtett redőnytokokkal felszerelve elektromos mozgatásra is előkészítve (a roló és szúnyogháló nem tartozék).
A lakás fűtés és hűtés rendszerét levegő és víz teres elektromos hőszivattyú működteti majd (lakásonként saját készülék) padlófűtéssel, a nappaliban fan coil (klíma) készülékkel „H tarifa” áram szolgáltatással. A melegvízellátást falra szerelt ARISTON típusú hőtároló készülék biztosítja.
Az ingatlan elhelyezkedésének köszönhetően remek adottságokkal rendelkezik. Iskola, óvoda, autóbusz megálló (amelynek járatai Bp. Etele térig közlekedik), Érd- Nagyállomás vasúti megálló (végállomás Kelenföld és Déli p.u.), a mindennapi bevásárláshoz szükséges boltok, háziorvosi rendelő és gyógyszertár 5-10 perces könnyű sétával, az M6-os autópálya 6-os és 7-es főutakkal találkozó csomópontja 5 perc autózással elérhető.
A lakáshoz tartozó saját, teremgarázs parkoló vételára + 3 000 000 Ft, vagy felszíni parkoló 1 500 000 Ft, tároló + 2 000 0000 Ft a lakás vételárán felül vásárolható.
Ezen a linken megnézheti a beruházó egyik már átadott társasházáról és annak lakásairól készült videót:
https://www.youtube.com/watch?v=IJpMbm6kAuY
Ha bármilyen kérdésed lenne az ingatlannal kapcsolatban, ne habozz felvenni velünk a kapcsolatot. Ügyfeleink bizalommal fordulhatnak hozzánk, hiszen készséggel állunk rendelkezésükre. Az ingatlan bemutatása mellett a mi célunk az, hogy segítsük megtalálni az ideális otthont. Akár készpénzből akár államilag támogatott vagy szabad piaci hitelt szeretnél felvenni a vásárláshoz, tanácsadó kollégánk díjmentes, banksemleges ügyintézéssel áll rendelkezésre. Igény esetén ügyvédi segítséget is ajánlunk a teljes ügymenet jogi lebonyolításához.
Jelenleg elérhető lakáskínálat:
Földszint:
1-es lakás. 2 szoba + nappali, 51,38 m2 (+ 2 m2 terasz + 5 m2 tároló), kertkapcsolat. 66,9 Millió Ft (+ garázs 3 Millió + Tároló 2 Millió össz.: 71,9 Millió Ft)
2-es lakás. 2 szoba + nappali, 60 m2 (+ 4,6 m2 terasz + 5 m2 tároló), kertkapcsolat. 78 Millió Ft (+ garázs 3 Millió + Tároló 2 Millió össz.: 83 Millió Ft)
3-as lakás. 2 szoba + nappali, 52,66 m2 (+ 5 m2 tároló). 68,5 Millió Ft (+ garázs 3 Millió + Tároló 2 Millió össz.: 73,5 Millió Ft)
4-es lakás. 2 szoba + nappali, 60,32 m2 (+ 4 m2 terasz + 5 m2 tároló), kertkapcsolat. ELADVA (+ garázs 3 Millió + Tároló 2 Millió össz.: ELADVA)
5-ös lakás. 2 szoba + nappali, 70,9 m2 (+ 4 m2 terasz + 5 m2 tároló), kertkapcsolat. 91,9 Millió Ft (+ garázs 3 Millió + Tároló 2 Millió össz.: 96,9 Millió Ft)
6-os lakás. 2 szoba + nappali, 49,71 m2 (+ 4,6 m2 terasz + 5 m2 tároló), kertkapcsolat. 64,5 Millió Ft (+ garázs 3 Millió + Tároló 2 Millió össz.: 69,5 Millió Ft)
Emelet:
7-es lakás. 2 szoba + nappali, 51,54 m2 (+ 4,81 m2 erkély + 5 m2 tároló). 69,886 Millió Ft (+ garázs 3 Millió + Tároló 2 Millió össz.: 74,886 Millió Ft)
8-as lakás. 2 szoba + nappali, 60,19 m2 (+ 4,74 m2 erkély + 5 m2 tároló). 80,744 Millió Ft (+ garázs 3 Millió + Tároló 2 Millió össz.: 85,774 Millió Ft)
9-es lakás. 2 szoba + nappali, 61,47 m2 (+ 4,09 m2 erkély + 5 m2 tároló). 82,354 Millió Ft (+ felszíni parkoló 1,5 Millió + Tároló 2 Millió össz.: 85,854 Millió Ft)
10-es lakás. 2 szoba + nappali, 67,52 m2 (+ 5,03 m2 erkély + 5 m2 tároló). 90,518 Millió Ft (+ felszíni parkoló 1,5 Millió + Tároló 2 Millió össz.: 94,018 Millió Ft)
11-es lakás. 3 szoba + nappali, 107,65 m2 (+ 9,83 m2 erkély + 5 m2 tároló). 140,398 Millió Ft (+ felszíni parkoló 1,5 Millió + Tároló 2 Millió össz.: 143,898 Millió Ft)
12-es lakás. 2 szoba + nappali, 63,07 m2 (+ 7,7 m2 erkély + 5 m2 tároló). 86,520 Millió Ft (+ felszíni parkoló 1,5 Millió + Tároló 2 Millió össz.: 90,02 Millió Ft)
13-as lakás. 2 szoba + nappali, 63,98 m2 (+ 7,7 m2 erkély + 5 m2 tároló). 87,62 Millió Ft (+ felszíni parkoló 1,5 Millió + Tároló 2 Millió össz.: 91,12 Millió Ft)
Tetőtér:
14-es lakás. 4 szoba + nappali, dupla fürdőszobás, nettó: 101,31 m2 bruttó: 153,7 m2 (+ 4,74 m2 erkély + 5 m2 tároló). 123,844 Millió Ft (+ felszíni parkoló 1,5 Millió + Tároló 2 Millió össz.: 127,344 Millió Ft)
15-ös lakás. 3 szoba + nappali, dupla fürdőszobás, nettó: 81,04 m2 bruttó: 112 m2 (+ 5,03 m2 erkély + 5 m2 tároló). 84,018 Millió Ft (+ felszíni parkoló 1,5 Millió + Tároló 2 Millió össz.: 87,518 Millió Ft)
16-os lakás. 3 szoba + nappali, nettó: 68,87 m2 bruttó: 82,95 m2 (+ 7,28 m2 erkély + 5 m2 tároló). 73,238 Millió Ft (+ felszíni parkoló 1,5 Millió + Tároló 2 Millió össz.: 76,738 Millió Ft)
MINDEGYIK LAKÁS SAJÁT FŐVÍZMÉRŐ ÓRÁVAL RENDELKEZIK!
A TÁRSASHÁZI lakás 68 m2-es + 5 m2 erkély, 2 szoba (12; 11,8 m2) + nappali-konyha-étkező (33 m2), fürdőszoba -WC, kamra, előszoba, helyiségekből álló első emeleti lakás.
A hideg és meleg burkolatok (7.500 Ft/m2), belső falak színei, szaniterek, csaptelepek választhatók így a leendő új tulajdonos ízlésének megfelelően történek a befejezési munkák. A ház 30-as hőszigetelő téglából épül, amit 15 cm-es szigeteléssel burkolnak. A külső nyílászárók 6 légkamrás, 3 rétegű üvegezéssel ellátott, bukó-nyíló ajtók és ablakok, rejtett redőnytokokkal felszerelve elektromos mozgatásra is előkészítve (a roló és szúnyogháló nem tartozék).
A lakás fűtés és hűtés rendszerét levegő és víz teres elektromos hőszivattyú működteti majd (lakásonként saját készülék) padlófűtéssel, a nappaliban fan coil (klíma) készülékkel „H tarifa” áram szolgáltatással. A melegvízellátást falra szerelt ARISTON típusú hőtároló készülék biztosítja.
Az ingatlan elhelyezkedésének köszönhetően remek adottságokkal rendelkezik. Iskola, óvoda, autóbusz megálló (amelynek járatai Bp. Etele térig közlekedik), Érd- Nagyállomás vasúti megálló (végállomás Kelenföld és Déli p.u.), a mindennapi bevásárláshoz szükséges boltok, háziorvosi rendelő és gyógyszertár 5-10 perces könnyű sétával, az M6-os autópálya 6-os és 7-es főutakkal találkozó csomópontja 5 perc autózással elérhető.
A lakáshoz tartozó saját, teremgarázs parkoló vételára + 3 000 000 Ft, vagy felszíni parkoló 1 500 000 Ft, tároló + 2 000 0000 Ft a lakás vételárán felül vásárolható.
Ezen a linken megnézheti a beruházó egyik már átadott társasházáról és annak lakásairól készült videót:
https://www.youtube.com/watch?v=IJpMbm6kAuY
Ha bármilyen kérdésed lenne az ingatlannal kapcsolatban, ne habozz felvenni velünk a kapcsolatot. Ügyfeleink bizalommal fordulhatnak hozzánk, hiszen készséggel állunk rendelkezésükre. Az ingatlan bemutatása mellett a mi célunk az, hogy segítsük megtalálni az ideális otthont. Akár készpénzből akár államilag támogatott vagy szabad piaci hitelt szeretnél felvenni a vásárláshoz, tanácsadó kollégánk díjmentes, banksemleges ügyintézéssel áll rendelkezésre. Igény esetén ügyvédi segítséget is ajánlunk a teljes ügymenet jogi lebonyolításához.
Jelenleg elérhető lakáskínálat:
Földszint:
1-es lakás. 2 szoba + nappali, 51,38 m2 (+ 2 m2 terasz + 5 m2 tároló), kertkapcsolat. 66,9 Millió Ft (+ garázs 3 Millió + Tároló 2 Millió össz.: 71,9 Millió Ft)
2-es lakás. 2 szoba + nappali, 60 m2 (+ 4,6 m2 terasz + 5 m2 tároló), kertkapcsolat. 78 Millió Ft (+ garázs 3 Millió + Tároló 2 Millió össz.: 83 Millió Ft)
3-as lakás. 2 szoba + nappali, 52,66 m2 (+ 5 m2 tároló). 68,5 Millió Ft (+ garázs 3 Millió + Tároló 2 Millió össz.: 73,5 Millió Ft)
4-es lakás. 2 szoba + nappali, 60,32 m2 (+ 4 m2 terasz + 5 m2 tároló), kertkapcsolat. ELADVA (+ garázs 3 Millió + Tároló 2 Millió össz.: ELADVA)
5-ös lakás. 2 szoba + nappali, 70,9 m2 (+ 4 m2 terasz + 5 m2 tároló), kertkapcsolat. 91,9 Millió Ft (+ garázs 3 Millió + Tároló 2 Millió össz.: 96,9 Millió Ft)
6-os lakás. 2 szoba + nappali, 49,71 m2 (+ 4,6 m2 terasz + 5 m2 tároló), kertkapcsolat. 64,5 Millió Ft (+ garázs 3 Millió + Tároló 2 Millió össz.: 69,5 Millió Ft)
Emelet:
7-es lakás. 2 szoba + nappali, 51,54 m2 (+ 4,81 m2 erkély + 5 m2 tároló). 69,886 Millió Ft (+ garázs 3 Millió + Tároló 2 Millió össz.: 74,886 Millió Ft)
8-as lakás. 2 szoba + nappali, 60,19 m2 (+ 4,74 m2 erkély + 5 m2 tároló). 80,744 Millió Ft (+ garázs 3 Millió + Tároló 2 Millió össz.: 85,774 Millió Ft)
9-es lakás. 2 szoba + nappali, 61,47 m2 (+ 4,09 m2 erkély + 5 m2 tároló). 82,354 Millió Ft (+ felszíni parkoló 1,5 Millió + Tároló 2 Millió össz.: 85,854 Millió Ft)
10-es lakás. 2 szoba + nappali, 67,52 m2 (+ 5,03 m2 erkély + 5 m2 tároló). 90,518 Millió Ft (+ felszíni parkoló 1,5 Millió + Tároló 2 Millió össz.: 94,018 Millió Ft)
11-es lakás. 3 szoba + nappali, 107,65 m2 (+ 9,83 m2 erkély + 5 m2 tároló). 140,398 Millió Ft (+ felszíni parkoló 1,5 Millió + Tároló 2 Millió össz.: 143,898 Millió Ft)
12-es lakás. 2 szoba + nappali, 63,07 m2 (+ 7,7 m2 erkély + 5 m2 tároló). 86,520 Millió Ft (+ felszíni parkoló 1,5 Millió + Tároló 2 Millió össz.: 90,02 Millió Ft)
13-as lakás. 2 szoba + nappali, 63,98 m2 (+ 7,7 m2 erkély + 5 m2 tároló). 87,62 Millió Ft (+ felszíni parkoló 1,5 Millió + Tároló 2 Millió össz.: 91,12 Millió Ft)
Tetőtér:
14-es lakás. 4 szoba + nappali, dupla fürdőszobás, nettó: 101,31 m2 bruttó: 153,7 m2 (+ 4,74 m2 erkély + 5 m2 tároló). 123,844 Millió Ft (+ felszíni parkoló 1,5 Millió + Tároló 2 Millió össz.: 127,344 Millió Ft)
15-ös lakás. 3 szoba + nappali, dupla fürdőszobás, nettó: 81,04 m2 bruttó: 112 m2 (+ 5,03 m2 erkély + 5 m2 tároló). 84,018 Millió Ft (+ felszíni parkoló 1,5 Millió + Tároló 2 Millió össz.: 87,518 Millió Ft)
16-os lakás. 3 szoba + nappali, nettó: 68,87 m2 bruttó: 82,95 m2 (+ 7,28 m2 erkély + 5 m2 tároló). 73,238 Millió Ft (+ felszíni parkoló 1,5 Millió + Tároló 2 Millió össz.: 76,738 Millió Ft)
Kiemelt ingatlanok
Érd, Vincellér
Érd Parkváros kitűnő megközelíthetőséggel, közel "0" energiaigényű 3 lakásos sorház 120m2 hasznos lakóterületű 3 szoba+nappalis+GARÁZSOS, belső kétszintes, KÜLÖN UTCAFRONTI...
120 m23 háló1 fürdő
Érd, Érdliget
Érdligeten a városközpont közelében, átmenő forgalomtól mentes csendes családi házas környezetben, csodálatosan parkosított 1095 nm-es díszkertben, nettó 170nm lakóterületű családi...
197 m22 háló3 fürdő
Érd, Érdliget
VÁLLALKOZÓK, BEFEKTETŐK FIGYELEM!!!!!
Érdliget legszebb részén ÚJ ÉPÍTÉSŰ ENERGIATAKARÉKOS, VÁLASZTHATÓ BELSŐ BEFEJEZÉSSEL lakások eladók egy 11 lakásos társasházban. A...
164 m25 háló2 fürdő
Érd
Érden összesen 8 000 m2-es Lf építési övezetben található telekterület (5 egymás mellett található, de külön-külön helyrajziszámon nyilvántartott területből áll), 158 m2-es...
158 m2hálófürdő
Érd, Újtelep
Érd, Tárnok felé eső déli részén, TELJESEN ALÁPNCÉZETT ÖSSZESEN 360 m2-es HÁZ, AZ ÚJRA ELŐÁLLÍTÁSI KÖLTSÉGE ALATT!
A ház 2003-ban hőszigetelő téglából épült 923 m2-es...
308 m26 háló2 fürdő
Érd, Vincellér
Érd Parkváros kitűnő megközelíthetőséggel, közel "0" energiaigényű 3 lakásos sorház 107m2 hasznos lakóterületű 2 szoba+nappalis+GARÁZSOS, belső kétszintes, KÜLÖN UTCAFRONTI...
107 m22 háló1 fürdő













