Megosztás
Érd, Fenyves-Parkváros
ház, családi ház
Alapterület
135 m2
Telekterület
870 m2
Építés éve
2025
Háló
4 db
Fürdő
2 db
Nappali
1 db
199.9 Millió Ft
| Komfort | duplakomfort |
| Fürdő/WC | külön és egyben |
| Burkolat | laminált padló, járólap |
| Energiatanúsítvány | A+ |
| Környezeti hatás | napfényes, világos, csendes |
| Épület belső állapota | új |
| Épület külső állapota | új építésű |
| Fűtés | padló |
| Belső kialakítás | amerikai konyha, kamra, előszoba, közlekedő, háztartási helyiség, tároló, légkondicionálás, riasztó, redőny |
| Kiegészítő információk | internet, kábel tv, azonnal költözhető |
| Tájolás | délnyugat |
| Parkolás | garázsban, kültéri parkolóban, Közterületen - ingyenes |
| Telek kialakítás | elektromos kapu |
| Közmű | villany, víz, csatorna, ipari áram |
| Tetőszerkezet anyaga | betoncserép |
| Épületszerkezet | POROTHERM tégla, tégla, hőszigetelt |
| Közlekedés | tömegközlekedés közelben, autópálya felhajtó közelben |
| Kilátás | kertre néző |
| Extrák | kertkapcsolatos |
| Telek elhelyezkedés | belterület |
| Szintek száma: | földszintes |
FENYVESPARKVÁRSBAN AKÁR AZONNAL KÖLTÖZHETŐ, CSALÁDI HÁZ, 10 kW NAPELEM, 22 kV-os ELEKTROMOS AUTÓTÖLTŐ, KÖZPONTI KLÍMA, TOVÁBBI SZÁMOS EXTRÁVAL!
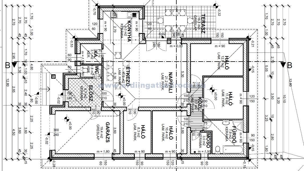
Érd-Fenyvesparkváros kerületében, 870 m2-es telekkel 2025-ben épült, 135 m2 hasznos lakóterületű + 16 m2 terasz, 4 szoba (12,9; 11,6; 10,4; 8,3 m2) + nappalis (46 m2) + duplafürdőszobás, magas műszaki tartalommal aprólékos precíz munkával megépített családi ház eladó.
A 46 m2-es tágas nappaliból közvetlen kapcsolat nyílik rozsdamentes korláttal és biztonsági üveggel kerített 16 m2-es teraszra. Innen egy lépés megtételével a saját kertjük kényelmében élvezhetik a szabad idő élményszerű eltöltését az itt lakók.
A ház 30-as hőszigetelt téglából épült, amit 15 cm-es polisztirolszigeteléssel burkoltak, a födémre 25 cm vastagságban kőzetgyapot, az aljzatba 10 cm vastagságú lépésálló polisztirol, a lábazatra pedig 8 cm-es xps szigetelés került. A külső nyílászárók hőszigetelt, 3 rétegű üvegezésű bukó-nyíló műanyag ajtók és ablakok, ezáltal nem kell attól tartani, hogy a hideg hónapok fűtési időszakában a rezsi költség nagyon megemelkedik.
A ház fűtése és használati melegvíz ellátása 10 kW-os, hőszivattyú készülékről történik padló hőleadással.
A hűtésről és légcserélésről központi klíma gondoskodik a ház minden helyiségében.
A hűtés és fűtés egyaránt külön-külön szabályozható minden szobában és a nappaliban is.
A házat számos kényelmi igényt kielégítő extrával szerelték fel: 10 kW napelem rendszer, Huawei elektromos autó töltő csatlakozás ( „A” 32A 22kW, „B” 16A 11kW, „C” 32A 7,4kW), központi klíma, riasztórendszer, elektromos nagykapu és garázs ajtó, külső-belső műkő párkányok, a vezetékes vízre szerelt vízlágyító, nagy felületen térkő burkolás a kényelmes parkolás érdekében, elektromos alumínium redőnyök és rolós szúnyoghálók a nyílászárókon, színes üvegkorlát a teraszon……
Az Erdőszéle óvoda, és a vele szemben található tanuszodával és sportcsarnokkal is rendelkező Teleki Sámuel általános iskola a közelben (5 perc séta távolságra) megtalálható. Az M7-es autópálya le és felhajtója 5 perc alatt elérhető. A ház elhelyezkedésének köszönhetően a közelben minden megtalálható, amire az itt lakóknak szüksége lehet iskola, óvoda, autóbuszmegálló, a mindennapi bevásárláshoz szükséges bolt, Parkváros központja egyaránt.
Ha bármilyen kérdésed lenne az ingatlannal kapcsolatban, ne habozz felvenni velünk a kapcsolatot. Ügyfeleink bizalommal fordulhatnak hozzánk, hiszen készséggel állunk rendelkezésükre. Az ingatlan bemutatása mellett a mi célunk az, hogy segítsük megtalálni az ideális otthont. Akár készpénzből akár államilag támogatott vagy szabad piaci hitelt szeretnél felvenni a vásárláshoz, tanácsadó kollégánk díjmentes, banksemleges ügyintézéssel áll rendelkezésre. Igény esetén ügyvédi segítséget is ajánlunk a teljes ügymenet jogi lebonyolításához.
Érd-Fenyvesparkváros kerületében, 870 m2-es telekkel 2025-ben épült, 135 m2 hasznos lakóterületű + 16 m2 terasz, 4 szoba (12,9; 11,6; 10,4; 8,3 m2) + nappalis (46 m2) + duplafürdőszobás, magas műszaki tartalommal aprólékos precíz munkával megépített családi ház eladó.
A 46 m2-es tágas nappaliból közvetlen kapcsolat nyílik rozsdamentes korláttal és biztonsági üveggel kerített 16 m2-es teraszra. Innen egy lépés megtételével a saját kertjük kényelmében élvezhetik a szabad idő élményszerű eltöltését az itt lakók.
A ház 30-as hőszigetelt téglából épült, amit 15 cm-es polisztirolszigeteléssel burkoltak, a födémre 25 cm vastagságban kőzetgyapot, az aljzatba 10 cm vastagságú lépésálló polisztirol, a lábazatra pedig 8 cm-es xps szigetelés került. A külső nyílászárók hőszigetelt, 3 rétegű üvegezésű bukó-nyíló műanyag ajtók és ablakok, ezáltal nem kell attól tartani, hogy a hideg hónapok fűtési időszakában a rezsi költség nagyon megemelkedik.
A ház fűtése és használati melegvíz ellátása 10 kW-os, hőszivattyú készülékről történik padló hőleadással.
A hűtésről és légcserélésről központi klíma gondoskodik a ház minden helyiségében.
A hűtés és fűtés egyaránt külön-külön szabályozható minden szobában és a nappaliban is.
A házat számos kényelmi igényt kielégítő extrával szerelték fel: 10 kW napelem rendszer, Huawei elektromos autó töltő csatlakozás ( „A” 32A 22kW, „B” 16A 11kW, „C” 32A 7,4kW), központi klíma, riasztórendszer, elektromos nagykapu és garázs ajtó, külső-belső műkő párkányok, a vezetékes vízre szerelt vízlágyító, nagy felületen térkő burkolás a kényelmes parkolás érdekében, elektromos alumínium redőnyök és rolós szúnyoghálók a nyílászárókon, színes üvegkorlát a teraszon……
Az Erdőszéle óvoda, és a vele szemben található tanuszodával és sportcsarnokkal is rendelkező Teleki Sámuel általános iskola a közelben (5 perc séta távolságra) megtalálható. Az M7-es autópálya le és felhajtója 5 perc alatt elérhető. A ház elhelyezkedésének köszönhetően a közelben minden megtalálható, amire az itt lakóknak szüksége lehet iskola, óvoda, autóbuszmegálló, a mindennapi bevásárláshoz szükséges bolt, Parkváros központja egyaránt.
Ha bármilyen kérdésed lenne az ingatlannal kapcsolatban, ne habozz felvenni velünk a kapcsolatot. Ügyfeleink bizalommal fordulhatnak hozzánk, hiszen készséggel állunk rendelkezésükre. Az ingatlan bemutatása mellett a mi célunk az, hogy segítsük megtalálni az ideális otthont. Akár készpénzből akár államilag támogatott vagy szabad piaci hitelt szeretnél felvenni a vásárláshoz, tanácsadó kollégánk díjmentes, banksemleges ügyintézéssel áll rendelkezésre. Igény esetén ügyvédi segítséget is ajánlunk a teljes ügymenet jogi lebonyolításához.
Kiemelt ingatlanok
Budapest
35 kW SZALDÓS ELSZÁMOLÁSÚ NAPELEM, 22 kW-os HŐSZIVATTYÚ, KÜLSŐ és BELSŐ FŰTÖTT MEDENCE, NAGY TELEK, TÁGAS BELSŐ TEREK, SZÁMOS EXTRÁVAL és akár TELJES BÚTORZATTAL és beépített...
600 m26 háló3 fürdő
Érd, Dombosváros
Érd dombosvárosi területén , főút közeli csendes , család barát aszfaltozott utcában , 1097 m2-es extra méretű parkosított összközműves telken ,belső kétszintes ,135,6m2-es ,3...
135 m23 háló2 fürdő
Érd, Vincellér
Érd Parkváros kitűnő megközelíthetőséggel, közel "0" energiaigényű 3 lakásos sorház 107m2 hasznos lakóterületű 2 szoba+nappalis+GARÁZSOS, belső kétszintes, KÜLÖN UTCAFRONTI...
107 m22 háló1 fürdő
Érd, Érdliget
Érdligeten a városközpont közelében, átmenő forgalomtól mentes csendes családi házas környezetben, csodálatosan parkosított 1095 nm-es díszkertben, nettó 170nm lakóterületű családi...
197 m22 háló3 fürdő
Érd, Fenyves-Parkváros
3 SZOBA+NAPPALIS, KÖZKEDVELT ALAPRAJZ SZERINT MEGÉPÜLT, 46M2 NAPPALI-ÉTKEZŐ-KONYHA TÁGAS TÉRREL, EGYSZINTES, MEDITERRÁN CSALÁDI HÁZ ELADÓ!
Érden, a Fenyves Parkvárosi részen 840m2...
128 m23 háló2 fürdő
Érd
Érden összesen 8 000 m2-es Lf építési övezetben található telekterület (5 egymás mellett található, de külön-külön helyrajziszámon nyilvántartott területből áll), 158 m2-es...
158 m2hálófürdő












