Megosztás
Érd, Újtelep
ház, családi ház, ikerház, többgenerációs családi ház
Alapterület
216 m2
Telekterület
360 m2
Építés éve
Háló
4 db
Fürdő
2 db
Nappali
1 db
89 Millió Ft
| Komfort | duplakomfort |
| Fürdő/WC | külön és egyben |
| Burkolat | laminált padló, járólap |
| Környezeti hatás | napfényes, világos, csendes |
| Épület belső állapota | jó állapotú |
| Épület külső állapota | jó állapotú |
| Fűtés | gáz (cirkó), radiátor |
| Belső kialakítás | loggia, erkély, konyha, kamra, előszoba, közlekedő, háztartási helyiség, tároló, gardrób |
| Kiegészítő információk | internet, kábel tv |
| Tájolás | délnyugat |
| Parkolás | garázsban, Közterületen - ingyenes |
| Telek kialakítás | udvar |
| Közmű | villany, gáz, víz, csatorna |
| Tetőszerkezet anyaga | zsindely |
| Épületszerkezet | tégla, hőszigetelt |
| Közlekedés | aszfaltút, tömegközlekedés közelben, vonat közelben, autópálya felhajtó közelben |
| Kilátás | kertre néző |
| Extrák | kertkapcsolatos |
| Tetőtér | beépített |
| Telek elhelyezkedés | belterület |
| Szintek száma: | 3 |
Érd déli részén, 360 m2-es telekkel rendelkező, az évek alatt folyamatosan karbantartott, 3 szintes, 231 m2-es, TEHERMENTES, TÖBB GENERÁCIÓS családi ikerház eladó.
Az ingatlan Érd déli részén található, összközműves, rendkívül jó közlekedési és infrastrukturális adottságokkal rendelkezik.
Aszfaltozott út mentén fekszik, 360 m2-es, gondozott telek terület tartozik hozzá. Az ikerház saroktelekre épült így mind a két fél saját utcai bejárattal rendelkezik (nincs egymáson átjárás, nincs „nyél”).
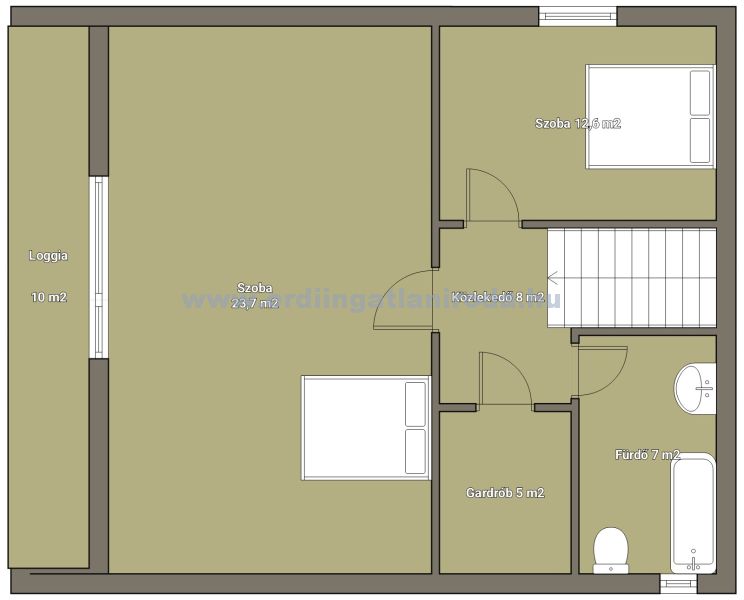
Az épület 3 szintes, összesen 216 m2-es lakóterülettel rendelkezik + teraszok (10 és 5 m2) téglából épült, amit polisztirolszigeteléssel láttak el, szerkezetileg stabil, jó állapotú. Nappali + 5 szobával (nappali + 4 háló vagy 2 nappali + háló elrendezésben is használható), 2 konyhával, 3 vizesblokkal rendelkezik.
A földszint 80 m2. Előszoba, garázs (45 m2), konyha-étkező és kézmosó-WC helyiségekből áll.
Az emeleten, 80 m2-en + terasz (5 m2), 2 hálószoba (12,6 és 12,5 m2), nappali (25,5 m2), konyha-étkező kamrával, fürdőszoba, WC került kialakításra.
A tetőtérben 56 m2-en + loggia (10 m2) közlekedőről nyílóan 2 szoba (23,7 és 12,6 m2), gardrób és fürdőszoba-WC található.
A ház, számos lehetőséget rejt magában. Az új tulajdonosok többféleképpen „belakhatják” saját családi struktúrájuknak megfelelően, mindenki számára megfelelő komfortot biztosítva.
Tömegközlekedés szempontjából is rendkívül szerencsés az elhelyezkedése.
VASÚTI MEGÁLLÓ (Kelenföldi pu. érintésével Déli pu.-ig), autóbusz megálló (amelynek járatai Bp. Etele tér és Érd Stop-Shop végállomások között közlekednek) VALÓBAN 5 perces sétával elérhetők.
Bevásárlási lehetőség, ÚJJÁÉPÍTETT (2022 átadással) SPORT TAGOZATOS iskola, 2019-ben átadott újként átadott óvoda, 1-2 Km körön belül fellelhetők.
Autóval az M6-os autópálya 6-os és 7-es főutakkal találkozó csomópontja 2 perc, az M7-es és M0-ás autópályák 6-8 perc alatt érhetőek el.
Ha bármilyen kérdésed lenne az ingatlannal kapcsolatban, ne habozz felvenni velünk a kapcsolatot. Ügyfeleink bizalommal fordulhatnak hozzánk, hiszen készséggel állunk rendelkezésükre. Az ingatlan bemutatása mellett a mi célunk az, hogy segítsük megtalálni az ideális otthont. Akár készpénzből akár államilag támogatott vagy szabad piaci hitelt szeretnél felvenni a vásárláshoz, tanácsadó kollégánk díjmentes, banksemleges ügyintézéssel áll rendelkezésre. Igény esetén ügyvédi segítséget is ajánlunk a teljes ügymenet jogi lebonyolításához.
Az ingatlan Érd déli részén található, összközműves, rendkívül jó közlekedési és infrastrukturális adottságokkal rendelkezik.
Aszfaltozott út mentén fekszik, 360 m2-es, gondozott telek terület tartozik hozzá. Az ikerház saroktelekre épült így mind a két fél saját utcai bejárattal rendelkezik (nincs egymáson átjárás, nincs „nyél”).
Az épület 3 szintes, összesen 216 m2-es lakóterülettel rendelkezik + teraszok (10 és 5 m2) téglából épült, amit polisztirolszigeteléssel láttak el, szerkezetileg stabil, jó állapotú. Nappali + 5 szobával (nappali + 4 háló vagy 2 nappali + háló elrendezésben is használható), 2 konyhával, 3 vizesblokkal rendelkezik.
A földszint 80 m2. Előszoba, garázs (45 m2), konyha-étkező és kézmosó-WC helyiségekből áll.
Az emeleten, 80 m2-en + terasz (5 m2), 2 hálószoba (12,6 és 12,5 m2), nappali (25,5 m2), konyha-étkező kamrával, fürdőszoba, WC került kialakításra.
A tetőtérben 56 m2-en + loggia (10 m2) közlekedőről nyílóan 2 szoba (23,7 és 12,6 m2), gardrób és fürdőszoba-WC található.
A ház, számos lehetőséget rejt magában. Az új tulajdonosok többféleképpen „belakhatják” saját családi struktúrájuknak megfelelően, mindenki számára megfelelő komfortot biztosítva.
Tömegközlekedés szempontjából is rendkívül szerencsés az elhelyezkedése.
VASÚTI MEGÁLLÓ (Kelenföldi pu. érintésével Déli pu.-ig), autóbusz megálló (amelynek járatai Bp. Etele tér és Érd Stop-Shop végállomások között közlekednek) VALÓBAN 5 perces sétával elérhetők.
Bevásárlási lehetőség, ÚJJÁÉPÍTETT (2022 átadással) SPORT TAGOZATOS iskola, 2019-ben átadott újként átadott óvoda, 1-2 Km körön belül fellelhetők.
Autóval az M6-os autópálya 6-os és 7-es főutakkal találkozó csomópontja 2 perc, az M7-es és M0-ás autópályák 6-8 perc alatt érhetőek el.
Ha bármilyen kérdésed lenne az ingatlannal kapcsolatban, ne habozz felvenni velünk a kapcsolatot. Ügyfeleink bizalommal fordulhatnak hozzánk, hiszen készséggel állunk rendelkezésükre. Az ingatlan bemutatása mellett a mi célunk az, hogy segítsük megtalálni az ideális otthont. Akár készpénzből akár államilag támogatott vagy szabad piaci hitelt szeretnél felvenni a vásárláshoz, tanácsadó kollégánk díjmentes, banksemleges ügyintézéssel áll rendelkezésre. Igény esetén ügyvédi segítséget is ajánlunk a teljes ügymenet jogi lebonyolításához.
Kiemelt ingatlanok
Érd, Vincellér
Érd Parkváros kitűnő megközelíthetőséggel, közel "0" energiaigényű 3 lakásos sorház 107m2 hasznos lakóterületű 2 szoba+nappalis+GARÁZSOS, belső kétszintes, KÜLÖN UTCAFRONTI...
107 m22 háló1 fürdő
Érd, Újtelep
Érd, Tárnok felé eső déli részén, TELJESEN ALÁPNCÉZETT ÖSSZESEN 360 m2-es HÁZ, AZ ÚJRA ELŐÁLLÍTÁSI KÖLTSÉGE ALATT!
A ház 2003-ban hőszigetelő téglából épült 923 m2-es...
308 m26 háló2 fürdő
Érd, Vincellér
Érd Parkváros kitűnő megközelíthetőséggel, közel "0" energiaigényű 3 lakásos sorház 120m2 hasznos lakóterületű 3 szoba+nappalis+GARÁZSOS, belső kétszintes, KÜLÖN UTCAFRONTI...
120 m23 háló1 fürdő
Budapest
35 kW SZALDÓS ELSZÁMOLÁSÚ NAPELEM, 22 kW-os HŐSZIVATTYÚ, KÜLSŐ és BELSŐ FŰTÖTT MEDENCE, NAGY TELEK, TÁGAS BELSŐ TEREK, SZÁMOS EXTRÁVAL és akár TELJES BÚTORZATTAL és beépített...
600 m26 háló3 fürdő
Érd
Érden összesen 8 000 m2-es Lf építési övezetben található telekterület (5 egymás mellett található, de külön-külön helyrajziszámon nyilvántartott területből áll), 158 m2-es...
158 m2hálófürdő
Érd, Fenyves-Parkváros
3 SZOBA+NAPPALIS, KÖZKEDVELT ALAPRAJZ SZERINT MEGÉPÜLT, 46M2 NAPPALI-ÉTKEZŐ-KONYHA TÁGAS TÉRREL, EGYSZINTES, MEDITERRÁN CSALÁDI HÁZ ELADÓ!
Érden, a Fenyves Parkvárosi részen 840m2...
128 m23 háló2 fürdő













