Megosztás
Diósd, Ófalu
ház, családi ház
Alapterület
154 m2
Telekterület
111 m2
Építés éve
Háló
2 db
Fürdő
2 db
Nappali
2 db
64.9 Millió Ft
| Komfort | duplakomfort |
| Fürdő/WC | egyben |
| Burkolat | laminált padló, járólap |
| Környezeti hatás | napfényes, világos, csendes |
| Épület belső állapota | közepes állapotú |
| Épület külső állapota | jó állapotú |
| Fűtés | gáz (cirkó), radiátor |
| Belső kialakítás | konyha, kamra, előszoba, közlekedő, légkondicionálás |
| Kiegészítő információk | internet, kábel tv, alkalmi vétel |
| Tájolás | délnyugat |
| Parkolás | kültéri parkolóban, Közterületen - ingyenes |
| Közmű | villany, gáz, víz, csatorna |
| Tetőszerkezet anyaga | betoncserép |
| Épületszerkezet | POROTHERM tégla, tégla |
| Közlekedés | aszfaltút, tömegközlekedés közelben, autópálya felhajtó közelben |
| Kilátás | utcai |
| Tetőtér | beépített |
| Telek elhelyezkedés | belterület |
| Szintek száma: | 2 |
Diósd Falu részén REMEK INFRASTRUKTÚRA MELLETT MÉGIS CSENDES UTCÁBAN! 2 szintes AKÁR 2 GENERÁCIÓNAK IS ALKALMAS CSALÁDI HÁZ!
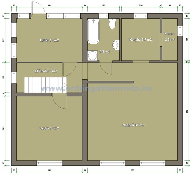
Az ingatlan 111 m2-es telekre épült téglából, 2 szintes, 154 m2-es, 2 hálószoba + 2 nappalis, 2 konyhával, duplakomforttal. Átalakítással a szobák száma növelhető.
A földszint 76 m2 nappali (31 m2) + szoba (15 m2), konyha kamrával, fürdőszoba-WC, előszoba (innen indul a lépcső a felsőszintre) helyiségek találhatók.
A tetőtérben 78 m2 a földszinttel megegyező elosztásban a helyiségek azonosan kerültek kialakításra.
A ház nagyobb család vagy akár 2 generáció zavartalan együttélésére is megfelelő lehet. A földszinten az alaprajzon „előtérnek” nevezett helységből könnyen kialakítható a felső szintre vezető lépcső akár úgy is, hogy az alsó és emeleti szintek külön-külön bejárattal rendelkezzenek.
Ha a konyha funkciók átkerülnek a nappaliba szintenként 1-1 félszoba nyerhető így kettővel növelhető a hálók száma.
A ház szerkezetileg stabil, jó állapotú, téglából épült. A tető betoncseréppel fedett, amire napelem rendszert is telepítettek (éves elszámolásban működik).
A ház központifűtés rendszere zártégésterű VAILANT márkájú gáz cirkó készülékről működik, radiátor hőleadókkal. A földszinten a nappaliban inverteres GREE márkájú hűtő-fűtő klíma is felszerelésre került. A használati melegvíz ellátásról hőtároló gondoskodik.
A földszint teljesen berendezett jelenleg is lakott. A tetőtér egy része befejezés előtt áll.
A bejárat előtt 1 autó számára a saját területen belül történő parkolás lehetősége biztosítható.
A ház kertvárosi környezetben, csendes mellékutcában helyezkedik el. Az M7-es és M0-ás autópályák, a 7-es főút, bevásárlási lehetőség (Inter Spar) autóval 2-5 perc alatt elérhetők. Autóbusz megálló (13 és 13A, 88, 113 BKK járatok végállomásuk Campona, Budatétény vasút állomás valamint 725 és 727 –es volán járatok Budapest Etele-tér végállomással), iskola, óvoda, kis bolt szintén 5-10 perces sétatávolságban megtalálhatók.
Ha bármilyen kérdésed lenne az ingatlannal kapcsolatban, ne habozz felvenni velünk a kapcsolatot. Ügyfeleink bizalommal fordulhatnak hozzánk, hiszen készséggel állunk rendelkezésükre. Az ingatlan bemutatása mellett a mi célunk az, hogy segítsük megtalálni az ideális otthont. Akár készpénzből akár államilag támogatott vagy szabad piaci hitelt szeretnél felvenni a vásárláshoz, tanácsadó kollégánk díjmentes, banksemleges ügyintézéssel áll rendelkezésre. Igény esetén ügyvédi segítséget is ajánlunk a teljes ügymenet jogi lebonyolításához.
Az ingatlan 111 m2-es telekre épült téglából, 2 szintes, 154 m2-es, 2 hálószoba + 2 nappalis, 2 konyhával, duplakomforttal. Átalakítással a szobák száma növelhető.
A földszint 76 m2 nappali (31 m2) + szoba (15 m2), konyha kamrával, fürdőszoba-WC, előszoba (innen indul a lépcső a felsőszintre) helyiségek találhatók.
A tetőtérben 78 m2 a földszinttel megegyező elosztásban a helyiségek azonosan kerültek kialakításra.
A ház nagyobb család vagy akár 2 generáció zavartalan együttélésére is megfelelő lehet. A földszinten az alaprajzon „előtérnek” nevezett helységből könnyen kialakítható a felső szintre vezető lépcső akár úgy is, hogy az alsó és emeleti szintek külön-külön bejárattal rendelkezzenek.
Ha a konyha funkciók átkerülnek a nappaliba szintenként 1-1 félszoba nyerhető így kettővel növelhető a hálók száma.
A ház szerkezetileg stabil, jó állapotú, téglából épült. A tető betoncseréppel fedett, amire napelem rendszert is telepítettek (éves elszámolásban működik).
A ház központifűtés rendszere zártégésterű VAILANT márkájú gáz cirkó készülékről működik, radiátor hőleadókkal. A földszinten a nappaliban inverteres GREE márkájú hűtő-fűtő klíma is felszerelésre került. A használati melegvíz ellátásról hőtároló gondoskodik.
A földszint teljesen berendezett jelenleg is lakott. A tetőtér egy része befejezés előtt áll.
A bejárat előtt 1 autó számára a saját területen belül történő parkolás lehetősége biztosítható.
A ház kertvárosi környezetben, csendes mellékutcában helyezkedik el. Az M7-es és M0-ás autópályák, a 7-es főút, bevásárlási lehetőség (Inter Spar) autóval 2-5 perc alatt elérhetők. Autóbusz megálló (13 és 13A, 88, 113 BKK járatok végállomásuk Campona, Budatétény vasút állomás valamint 725 és 727 –es volán járatok Budapest Etele-tér végállomással), iskola, óvoda, kis bolt szintén 5-10 perces sétatávolságban megtalálhatók.
Ha bármilyen kérdésed lenne az ingatlannal kapcsolatban, ne habozz felvenni velünk a kapcsolatot. Ügyfeleink bizalommal fordulhatnak hozzánk, hiszen készséggel állunk rendelkezésükre. Az ingatlan bemutatása mellett a mi célunk az, hogy segítsük megtalálni az ideális otthont. Akár készpénzből akár államilag támogatott vagy szabad piaci hitelt szeretnél felvenni a vásárláshoz, tanácsadó kollégánk díjmentes, banksemleges ügyintézéssel áll rendelkezésre. Igény esetén ügyvédi segítséget is ajánlunk a teljes ügymenet jogi lebonyolításához.
Kiemelt ingatlanok
Budapest
KÜLSŐ és BELSŐ FŰTÖTT MEDENCE, NAGY TELEK, TÁGAS BELSŐ TEREK, 35 Kw SZALDÓS ELSZÁMOLÁSÚ NAPELEM, SZÁMOS EXTRÁVAL és akár TELJES BÚTORZATTAL és beépített gépekkel! HAVI ÖSSZESEN...
600 m26 háló3 fürdő
Érd, Vincellér
Érd Parkváros kitűnő megközelíthetőséggel, közel "0" energiaigényű 3 lakásos sorház 116m2 hasznos lakóterületű 3 szoba+nappalis+garázsos, belső kétszintes, külön utcafronti...
116 m23 háló1 fürdő
Érd
Érden összesen 8 000 m2-es Lf építési övezetben található telekterület (5 egymás mellett található, de külön-külön helyrajziszámon nyilvántartott területből áll), 158 m2-es...
158 m2hálófürdő
Érd, Vincellér
Érd Parkváros kitűnő megközelíthetőséggel, közel "0" energiaigényű 3 lakásos sorház 98m2 hasznos lakóterületű 2 szoba+nappalis+garázsos, belső kétszintes, külön utcafronti...
98 m22 háló1 fürdő
Diósd, Ófalu
Diósd Falu részén REMEK INFRASTRUKTÚRA MELLETT MÉGIS CSENDES UTCÁBAN! 2 szintes AKÁR 2 GENERÁCIÓNAK IS ALKALMAS CSALÁDI HÁZ!
Az ingatlan 111 m2-es telekre épült téglából, 2 szintes,...
154 m22 háló2 fürdő












