Megosztás
Budapest
ház, ikerház
Alapterület
109 m2
Telekterület
1080 m2
Építés éve
2025
Háló
3 db
Fürdő
2 db
Nappali
1 db
149.9 Millió Ft
| Komfort | duplakomfort |
| Fürdő/WC | külön és egyben |
| Burkolat | laminált padló, járólap |
| Környezeti hatás | csendes |
| Épület belső állapota | új |
| Épület külső állapota | épülő projekt |
| Fűtés | egyéb |
| Belső kialakítás | erkély, ebédlő, amerikai konyha, kamra, előszoba, tároló |
| Tájolás | délnyugat |
| Közmű | villany, víz, csatorna |
| Tetőszerkezet anyaga | cserép |
| Épületszerkezet | POROTHERM tégla, hőszigetelt |
| Kilátás | kertre néző |
| Telek elhelyezkedés | belterület |
| Szintek száma: | 2 |
ÚJ ÉPÍTÉSŰ IKERHÁZ ÁREMELÉS ELŐTTI ÁRON, 2025-ÖS LEKÖTÉS ESETÉN 149,9 MFT ,
KIZÁRÓLAGOS UTCAFRONTI BEJÁRAT , SAJÁT SZEPARÁLT KERT, HŐSZIVATTYÚS PADLÓ FŰTÉS.
Budapest XXII. kerületében Budafokon épülő 357m2-es saját, SZEPARÁLT kerttel rendelkező, kétszintes ikerház várható átadása 2026. júliusában!
Megbízható beruházó, számos referencia ingatlan!
Az ikerházak sávos betonalapra épülnek, főfalak 30-as téglából készülnek, amelyekre kívülről 15cm dryvit szigetelés kerül. Belső válaszfalak szintén téglából készülnek. Az ikerházak a tárolók falánál érintkeznek.
A külső nyílászárók műanyag szerkezetűek, fokozott hőszigetelésű üvegezéssel ellátva.
A belső nyílászárók dekorfóliás ajtók.
Tetőfedés cserép.
Az igény szerinti befejezésnek köszönhetően a hideg-meleg burkolatok kiválaszthatók a kivitelezővel folytatott megbeszélés keretében, de az ár a hidegburkolatokat 4500 Ft/nm-ig, normál méretű lapok esetében a meleg burkolatokokat 4500 Ft/nm-ig tartalmazza.
A fütésről 8 kW-os Fischer hőszivattyú gondoskodik padlófűtéssel.
Parkolás: saját udvaron fedetlen-felszíni, kövezett beálló áll rendelkezésre.
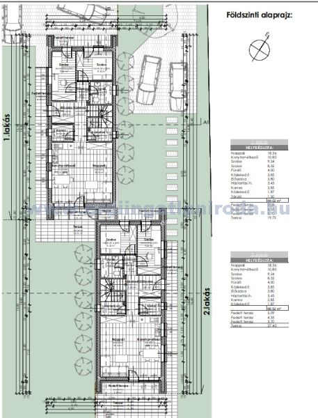
Az , 104,75 nm-es ikerház földszintjén található egy
- 21,25 nm-es nappali,
- 14,96 nm-es konyha-étkező
- 2,04 nm kamra
- 5,04 nm-es háztartási helyiség
- Fürdőszoba 3,23 nm
- Előszoba 3,2 nm
- + terasz 15,12 nm (ennek fele került a teljes négyzetméterbe beszámításra)
Az emeleten három élhető szoba ( 12,8 nm,12,4 nm és 10,07 nm) mellett egy fürdőszoba+WC 6,02 nm valamint a közlekedő 2,8 nm. (A lépcső 3,41 nm-t foglal el).
A 2. sz.109 nm-es ikerház földszintjén található egy
- Nappali 25,75 nm
- Konyha-étkező 12,29 nm
- Fürdőszoba 5,59 nm
- Előtér 3,23 nm
- + terasz 15,12 nm (ennek fele került a teljes négyzetméterbe beszámításra)
Az emeleten három élhető szoba ( 12,6 nm,12,1 nm és 10,12 nm) mellett egy fürdőszoba + WC 5,85 nm valamint a közlekedő 5,45 nm és egy háztartási helyiség 5,04 nm mellett a lépcső 3,5 nm-t foglal el.
Szuper infrastruktúra!!! Buszmegálló, óvoda, iskola, élelmiszerboltok, gyógyszertár, posta pár perc sétatávolságra.
Ha bármilyen kérdésed lenne az ingatlannal kapcsolatban, ne habozz felvenni a kapcsolatot.
Akár készpénzből akár államilag támogatott vagy szabad piaci hitelt szeretnél felvenni a vásárláshoz, tanácsadó kollégánk díjmentes, banksemleges ügyintézéssel áll rendelkezésre. Igény esetén ügyvédi segítséget is ajánlunk a teljes ügymenet jogi lebonyolításához.
KIZÁRÓLAGOS UTCAFRONTI BEJÁRAT , SAJÁT SZEPARÁLT KERT, HŐSZIVATTYÚS PADLÓ FŰTÉS.
Budapest XXII. kerületében Budafokon épülő 357m2-es saját, SZEPARÁLT kerttel rendelkező, kétszintes ikerház várható átadása 2026. júliusában!
Megbízható beruházó, számos referencia ingatlan!
Az ikerházak sávos betonalapra épülnek, főfalak 30-as téglából készülnek, amelyekre kívülről 15cm dryvit szigetelés kerül. Belső válaszfalak szintén téglából készülnek. Az ikerházak a tárolók falánál érintkeznek.
A külső nyílászárók műanyag szerkezetűek, fokozott hőszigetelésű üvegezéssel ellátva.
A belső nyílászárók dekorfóliás ajtók.
Tetőfedés cserép.
Az igény szerinti befejezésnek köszönhetően a hideg-meleg burkolatok kiválaszthatók a kivitelezővel folytatott megbeszélés keretében, de az ár a hidegburkolatokat 4500 Ft/nm-ig, normál méretű lapok esetében a meleg burkolatokokat 4500 Ft/nm-ig tartalmazza.
A fütésről 8 kW-os Fischer hőszivattyú gondoskodik padlófűtéssel.
Parkolás: saját udvaron fedetlen-felszíni, kövezett beálló áll rendelkezésre.
Az , 104,75 nm-es ikerház földszintjén található egy
- 21,25 nm-es nappali,
- 14,96 nm-es konyha-étkező
- 2,04 nm kamra
- 5,04 nm-es háztartási helyiség
- Fürdőszoba 3,23 nm
- Előszoba 3,2 nm
- + terasz 15,12 nm (ennek fele került a teljes négyzetméterbe beszámításra)
Az emeleten három élhető szoba ( 12,8 nm,12,4 nm és 10,07 nm) mellett egy fürdőszoba+WC 6,02 nm valamint a közlekedő 2,8 nm. (A lépcső 3,41 nm-t foglal el).
A 2. sz.109 nm-es ikerház földszintjén található egy
- Nappali 25,75 nm
- Konyha-étkező 12,29 nm
- Fürdőszoba 5,59 nm
- Előtér 3,23 nm
- + terasz 15,12 nm (ennek fele került a teljes négyzetméterbe beszámításra)
Az emeleten három élhető szoba ( 12,6 nm,12,1 nm és 10,12 nm) mellett egy fürdőszoba + WC 5,85 nm valamint a közlekedő 5,45 nm és egy háztartási helyiség 5,04 nm mellett a lépcső 3,5 nm-t foglal el.
Szuper infrastruktúra!!! Buszmegálló, óvoda, iskola, élelmiszerboltok, gyógyszertár, posta pár perc sétatávolságra.
Ha bármilyen kérdésed lenne az ingatlannal kapcsolatban, ne habozz felvenni a kapcsolatot.
Akár készpénzből akár államilag támogatott vagy szabad piaci hitelt szeretnél felvenni a vásárláshoz, tanácsadó kollégánk díjmentes, banksemleges ügyintézéssel áll rendelkezésre. Igény esetén ügyvédi segítséget is ajánlunk a teljes ügymenet jogi lebonyolításához.
Kiemelt ingatlanok
Érd, Tisztviselőtelep
Érden városközponthoz közelében , 639nm összközműves telken , nettó 77 nm lakóterületű 2+félszobás duplakomfortos önálló családiház + 10,11nm beépített terasszal ,pincével ,...
77 m22 háló2 fürdő
Érd, Érdliget
Érdligeten a városközpont közelében, átmenő forgalomtól mentes csendes családi házas környezetben, csodálatosan parkosított 1095 nm-es díszkertben, nettó 170nm lakóterületű családi...
197 m22 háló3 fürdő
Budapest
KÜLSŐ és BELSŐ FŰTÖTT MEDENCE, NAGY TELEK, TÁGAS BELSŐ TEREK, 35 Kw SZALDÓS ELSZÁMOLÁSÚ NAPELEM, SZÁMOS EXTRÁVAL és akár TELJES BÚTORZATTAL és beépített gépekkel! HAVI ÖSSZESEN...
600 m26 háló3 fürdő
Érd, Vincellér
Érd Parkváros kitűnő megközelíthetőséggel, közel "0" energiaigényű 3 lakásos sorház 92m2 hasznos lakóterületű 3 szoba+nappalis, belső kétszintes, külön utcafronti bejáratú,...
92 m23 háló2 fürdő
Érd, Újtelep
Érd, Tárnok felé eső déli részén, TELJESEN ALÁPNCÉZETT ÖSSZESEN 360 m2-es HÁZ, AZ ÚJRA ELŐÁLLÍTÁSI KÖLTSÉGE ALATT!
A ház 2003-ban hőszigetelő téglából épült 923 m2-es...
308 m26 háló2 fürdő
Érd
Érden összesen 8 000 m2-es Lf építési övezetben található telekterület (5 egymás mellett található, de külön-külön helyrajziszámon nyilvántartott területből áll), 158 m2-es...
158 m2hálófürdő













