Megosztás
Ráckeresztúr
ház, ikerház
Alapterület
84 m2
Telekterület
230 m2
Építés éve
2025
Háló
3 db
Fürdő
1 db
Nappali
1 db
83.9 Millió Ft
| Komfort | duplakomfort |
| Fürdő/WC | külön és egyben |
| Burkolat | laminált padló, járólap |
| Energiatanúsítvány | A+ |
| Környezeti hatás | napfényes, világos, csendes |
| Épület belső állapota | új |
| Épület külső állapota | új építésű |
| Fűtés | padló |
| Belső kialakítás | amerikai konyha, előszoba, háztartási helyiség |
| Kiegészítő információk | internet, kábel tv |
| Tájolás | délnyugat |
| Parkolás | kültéri parkolóban, Közterületen - ingyenes |
| Telek kialakítás | elektromos kapu |
| Közmű | villany, víz, csatorna |
| Tetőszerkezet anyaga | betoncserép |
| Épületszerkezet | POROTHERM tégla, tégla, hőszigetelt |
| Közlekedés | aszfaltút, tömegközlekedés közelben, autópálya felhajtó közelben |
| Kilátás | kertre néző |
| Extrák | akadálymentesített, kertkapcsolatos |
| Telek elhelyezkedés | belterület |
| Szintek száma: | földszintes |
BUDAPEST és SZÉKESFEHÉRVÁR BELVÁROSÁTÓL EGYARÁNT 30 PERCRE NYUGODT CSENDES CSALÁDI HÁZAS ÖVEZETBEN!
20 ÉVES, SZÁMOS REFERENCIÁVAL RENDELKEZŐ ÉPÍTŐIPARI CÉGTŐL!
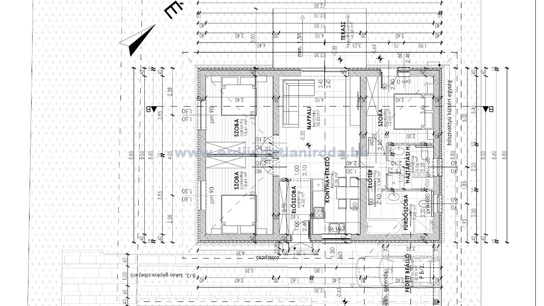
Ráckeresztúr főutjához és az M6-os autópálya csomóponthoz is közel. Végig aszfaltozott úton megközelíthető, ~ 230 m2-es saját lekerített sík telekkel rendelkező, összesen 98 m2-es (hasznos lakóterület 84 m2 + 15 m2-es terasz), 3 szoba + nappalis, ÚJ családi ház, VEVŐ IZLÉSÉNEK MEGFELELŐ ENTERIŐREL eladó.
A ház minőségi anyagok felhasználásával, precíz munkával és nagy odafigyeléssel épül. A tartószerkezet vasalt sávalapra 30-as hőszigetelő téglából épül.
A külső homlokzatra 12 cm-es grafitos, a padlózatba 10 cm-es lépésálló a függesztett mennyezetre 30 cm kőzetgyapot szigetelés kerül.
A külső nyílászárók Kömmerling gyártmányú, 3 rétegű hőszigetelt üvegezésű, 5 légkamrás („meleg peremmel”), bukó-nyíló vasalatú, kívül színes belül fehér műanyag ajtók és ablakok.
A padlófűtés „H tarifás mérőórára” kötött 10 kW-os Gree hőszivattyú készülékről működik. (HMV tartállyal a használati melegvíz előállításához).
Annak érdekében, hogy az egymástól eltérő időben aktív családtagok komfort érzette a lehető leg kompromisszum mentesebb legyen a belső főfalak hangszigetelő téglából épülnek meg.
A vételár tartalmazza: A rejtett redőnytokok beépítését (rolók nélkül) elektromos mozgatású redőnyök motorjának a bekötési lehetőségét is biztosítva. Riasztóberendezés előkészítését (eszközök nélkül). A hidegburkolatokat 8.000 Ft-os m2-áron (a munkadíjat max 60x60-as lapokig, a vizesblokkok oldalfalait ~2,4 m magasságig burkolva). A meleg burkolatokat 6.000 Ft-os m2-áron. 2 db falba sülyesztett Geberit WC tartályt. A vizesblokkok szanitereinek és csaptelepeinek árát amit 500.000 Ft-os költségkeretig felár nélkül válogathat össze a vevő. A beltéri ajtókat 80.000 Ft/db áron. A saját leválasztott telekrészt „3D-s” kapuval. A fedett autóbeállót és tárolót.
1x32A normál díjszabású és 1x16A „H tarifa” díjszabású bekötést szabvány szerint kiépített villanyórákkal.
A község ezen része már kiépült, munkába járó környezetükre igényes életvitel szerűen itt tartózkodó szomszédság alkotja a lakóközösséget.
Ráckeresztúr Fejér vármegyéhez tartozik Martonvásár és Ercsi szomszédságában található. A 6-os és 7-es főutak valamint az M7-es és M6-os autópályák pár perc alatt elérhetők. Tömegközlekedés helyközi autóbusszal Martonvásár és Ercsi irányába is adott átszállási lehetőséggel elővárosi vasúti járatokra.
Budapest és Székesfehérvár belvárosa egyaránt 30 perc, közelebbi városok (Érd, Budaörs) 15 perc autózással elérhetől.
Az ingatlan várható átadása 2026 tavasz.
Ha bármilyen kérdésed lenne az ingatlannal kapcsolatban, ne habozz felvenni velünk a kapcsolatot. Ügyfeleink bizalommal fordulhatnak hozzánk, hiszen készséggel állunk rendelkezésükre. Az ingatlan bemutatása mellett a mi célunk az, hogy segítsük megtalálni az ideális otthont. Akár készpénzből akár államilag támogatott vagy szabad piaci hitelt szeretnél felvenni a vásárláshoz, tanácsadó kollégánk díjmentes, bankfüggetlen ügyintézéssel áll rendelkezésre. Igény esetén ügyvédi segítséget is ajánlunk a teljes ügymenet jogi lebonyolításához.
20 ÉVES, SZÁMOS REFERENCIÁVAL RENDELKEZŐ ÉPÍTŐIPARI CÉGTŐL!
Ráckeresztúr főutjához és az M6-os autópálya csomóponthoz is közel. Végig aszfaltozott úton megközelíthető, ~ 230 m2-es saját lekerített sík telekkel rendelkező, összesen 98 m2-es (hasznos lakóterület 84 m2 + 15 m2-es terasz), 3 szoba + nappalis, ÚJ családi ház, VEVŐ IZLÉSÉNEK MEGFELELŐ ENTERIŐREL eladó.
A ház minőségi anyagok felhasználásával, precíz munkával és nagy odafigyeléssel épül. A tartószerkezet vasalt sávalapra 30-as hőszigetelő téglából épül.
A külső homlokzatra 12 cm-es grafitos, a padlózatba 10 cm-es lépésálló a függesztett mennyezetre 30 cm kőzetgyapot szigetelés kerül.
A külső nyílászárók Kömmerling gyártmányú, 3 rétegű hőszigetelt üvegezésű, 5 légkamrás („meleg peremmel”), bukó-nyíló vasalatú, kívül színes belül fehér műanyag ajtók és ablakok.
A padlófűtés „H tarifás mérőórára” kötött 10 kW-os Gree hőszivattyú készülékről működik. (HMV tartállyal a használati melegvíz előállításához).
Annak érdekében, hogy az egymástól eltérő időben aktív családtagok komfort érzette a lehető leg kompromisszum mentesebb legyen a belső főfalak hangszigetelő téglából épülnek meg.
A vételár tartalmazza: A rejtett redőnytokok beépítését (rolók nélkül) elektromos mozgatású redőnyök motorjának a bekötési lehetőségét is biztosítva. Riasztóberendezés előkészítését (eszközök nélkül). A hidegburkolatokat 8.000 Ft-os m2-áron (a munkadíjat max 60x60-as lapokig, a vizesblokkok oldalfalait ~2,4 m magasságig burkolva). A meleg burkolatokat 6.000 Ft-os m2-áron. 2 db falba sülyesztett Geberit WC tartályt. A vizesblokkok szanitereinek és csaptelepeinek árát amit 500.000 Ft-os költségkeretig felár nélkül válogathat össze a vevő. A beltéri ajtókat 80.000 Ft/db áron. A saját leválasztott telekrészt „3D-s” kapuval. A fedett autóbeállót és tárolót.
1x32A normál díjszabású és 1x16A „H tarifa” díjszabású bekötést szabvány szerint kiépített villanyórákkal.
A község ezen része már kiépült, munkába járó környezetükre igényes életvitel szerűen itt tartózkodó szomszédság alkotja a lakóközösséget.
Ráckeresztúr Fejér vármegyéhez tartozik Martonvásár és Ercsi szomszédságában található. A 6-os és 7-es főutak valamint az M7-es és M6-os autópályák pár perc alatt elérhetők. Tömegközlekedés helyközi autóbusszal Martonvásár és Ercsi irányába is adott átszállási lehetőséggel elővárosi vasúti járatokra.
Budapest és Székesfehérvár belvárosa egyaránt 30 perc, közelebbi városok (Érd, Budaörs) 15 perc autózással elérhetől.
Az ingatlan várható átadása 2026 tavasz.
Ha bármilyen kérdésed lenne az ingatlannal kapcsolatban, ne habozz felvenni velünk a kapcsolatot. Ügyfeleink bizalommal fordulhatnak hozzánk, hiszen készséggel állunk rendelkezésükre. Az ingatlan bemutatása mellett a mi célunk az, hogy segítsük megtalálni az ideális otthont. Akár készpénzből akár államilag támogatott vagy szabad piaci hitelt szeretnél felvenni a vásárláshoz, tanácsadó kollégánk díjmentes, bankfüggetlen ügyintézéssel áll rendelkezésre. Igény esetén ügyvédi segítséget is ajánlunk a teljes ügymenet jogi lebonyolításához.
Kiemelt ingatlanok
Érd, Vincellér
Érd Parkváros kitűnő megközelíthetőséggel, közel "0" energiaigényű 3 lakásos sorház 92m2 hasznos lakóterületű 3 szoba+nappalis, belső kétszintes, külön utcafronti bejáratú,...
92 m23 háló2 fürdő
Érd, Újtelep
Érd, Tárnok felé eső déli részén, TELJESEN ALÁPNCÉZETT ÖSSZESEN 360 m2-es HÁZ, AZ ÚJRA ELŐÁLLÍTÁSI KÖLTSÉGE ALATT!
A ház 2003-ban hőszigetelő téglából épült 923 m2-es...
308 m26 háló2 fürdő
Érd, Tisztviselőtelep
Érden városközponthoz közelében , 639nm összközműves telken , nettó 77 nm lakóterületű 2+félszobás duplakomfortos önálló családiház + 10,11nm beépített terasszal ,pincével ,...
77 m22 háló2 fürdő
Érd, Vincellér
Érd Parkváros kitűnő megközelíthetőséggel, közel "0" energiaigényű 3 lakásos sorház 98m2 hasznos lakóterületű 2 szoba+nappalis+garázsos, belső kétszintes, külön utcafronti...
98 m22 háló1 fürdő
Érd, Érdliget
Érdligeten a városközpont közelében, átmenő forgalomtól mentes csendes családi házas környezetben, csodálatosan parkosított 1095 nm-es díszkertben, nettó 170nm lakóterületű családi...
197 m22 háló3 fürdő
Érd
Érden összesen 8 000 m2-es Lf építési övezetben található telekterület (5 egymás mellett található, de külön-külön helyrajziszámon nyilvántartott területből áll), 158 m2-es...
158 m2hálófürdő













